Valencia, Alicante, Alcalalí, Spain
- PROPERTY TYPE
Villa
- BEDROOMS
3
- BATHROOMS
2
- SIZE
4,510 sq ft
419 sq m
Key features
- Open terrace
Description
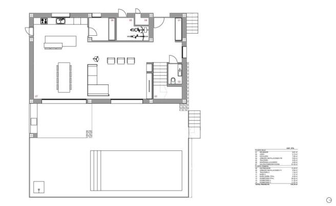
The project envisages a villa that will be built over two floors. On the ground floor, a spacious living-dining room is planned with an open kitchen equipped with a cooking island, complemented by a pantry, storage space and a guest toilet. The upper floor is designed with three comfortable bedrooms and two stylishly designed bathrooms that combine functionality and aesthetics, one of which is en-suite. The layout of the project has been carefully designed to ensure optimal use of space and to create a natural flow between the different living areas.
In addition, the private garden has been designed to allow you to enjoy the outdoors and nature in complete privacy, as well as two terraces where you can experience the Mediterranean climate all year round.
There is also an 8 x 4 metre swimming pool, ideal for cooling off during the hot summer months. The outdoor areas will consist of both an open terrace and a covered terrace, so there is always a choice between sun and shade. The plot will be fully fenced, ensuring security and peace of mind, while good connections to nearby main roads guarantee easy access to local amenities and attractions.
The villa will be equipped with air conditioning for heating and cooling via air ducts, creating a pleasant indoor climate in every room, regardless of the season. Double glazing, automatic shutters in the bedrooms and the provision of parking and storage space contribute to additional living comfort.
This project represents not only the realisation of a home, but a lifestyle in which tranquillity, comfort and modern luxury come together in charming AlcalalÃ. With its contemporary architecture and thoughtful amenities, this project is an invitation to enjoy an exceptional living environment every day, where time seems to stand still.
Valencia, Alicante, Alcalalí, Spain
Advice on buying Spanish property
Learn everything you need to know to successfully find and buy a property in Spain.
Notes
This is a property advertisement provided and maintained by Hamiltons of London, Alicante (reference HI11KP3HQ) and does not constitute property particulars. Whilst we require advertisers to act with best practice and provide accurate information, we can only publish advertisements in good faith and have not verified any claims or statements or inspected any of the properties, locations or opportunities promoted. Rightmove does not own or control and is not responsible for the properties, opportunities, website content, products or services provided or promoted by third parties and makes no warranties or representations as to the accuracy, completeness, legality, performance or suitability of any of the foregoing. We therefore accept no liability arising from any reliance made by any reader or person to whom this information is made available to. You must perform your own research and seek independent professional advice before making any decision to purchase or invest in overseas property.




