Tarbert Walk, Shadwell

Letting details
- Let available date:
- Now
- Deposit:
- £1,016A deposit provides security for a landlord against damage, or unpaid rent by a tenant.Read more about deposit in our glossary page.
- Min. Tenancy:
- Ask agent How long the landlord offers to let the property for.Read more about tenancy length in our glossary page.
- Furnish type:
- Furnished
- Council Tax:
- Ask agent
- PROPERTY TYPE
House Share
- BEDROOMS
1
- BATHROOMS
1
- SIZE
Ask agent
Key features
- All Bills inclusive
- Large Double Bedroom
- Desk & Chair
- 5 mins walk to Shadwell station
- Close to Queen Mary, University of London
- Short walk from the vibrant Brick Lane!!
Description
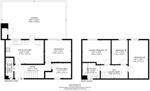
This well-maintained house comprises:
Four double bedrooms
Spacious separate reception room
Extremely large fully fitted kitchen with dining area
Newly tiled bathroom
Private rear garden
Ample storage space throughout
The layout offers comfortable communal living areas alongside well-proportioned private bedrooms, creating a practical and sociable living environment.
Rent - All Bills Included
The monthly rent includes:
Gas
Electricity
Water
High-speed internet
Council Tax
Enjoy one simple monthly payment with no hidden costs.
Location
Situated just five minutes' walk from Shadwell Station, offering excellent connectivity across London.
The property is also within close proximity to:
Queen Mary University of London
City, University of London
St Bartholomew School of Nursing & Midwifery
A short walk away is Brick Lane, renowned for its vibrant restaurants, markets and cultural scene.
Available now - early viewing is strongly recommended.
- COUNCIL TAXA payment made to your local authority in order to pay for local services like schools, libraries, and refuse collection. The amount you pay depends on the value of the property.Read more about council Tax in our glossary page.
- Ask agent
- PARKINGDetails of how and where vehicles can be parked, and any associated costs.Read more about parking in our glossary page.
- Ask agent
- GARDENA property has access to an outdoor space, which could be private or shared.
- Yes
- ACCESSIBILITYHow a property has been adapted to meet the needs of vulnerable or disabled individuals.Read more about accessibility in our glossary page.
- Ask agent
Tarbert Walk, Shadwell
Add an important place to see how long it'd take to get there from our property listings.
__mins driving to your place
Notes
Staying secure when looking for property
Ensure you're up to date with our latest advice on how to avoid fraud or scams when looking for property online.
Visit our security centre to find out moreDisclaimer - Property reference 101757007212. The information displayed about this property comprises a property advertisement. Rightmove.co.uk makes no warranty as to the accuracy or completeness of the advertisement or any linked or associated information, and Rightmove has no control over the content. This property advertisement does not constitute property particulars. The information is provided and maintained by Tony Alan Estates, London. Please contact the selling agent or developer directly to obtain any information which may be available under the terms of The Energy Performance of Buildings (Certificates and Inspections) (England and Wales) Regulations 2007 or the Home Report if in relation to a residential property in Scotland.
*This is the average speed from the provider with the fastest broadband package available at this postcode. The average speed displayed is based on the download speeds of at least 50% of customers at peak time (8pm to 10pm). Fibre/cable services at the postcode are subject to availability and may differ between properties within a postcode. Speeds can be affected by a range of technical and environmental factors. The speed at the property may be lower than that listed above. You can check the estimated speed and confirm availability to a property prior to purchasing on the broadband provider's website. Providers may increase charges. The information is provided and maintained by Decision Technologies Limited. **This is indicative only and based on a 2-person household with multiple devices and simultaneous usage. Broadband performance is affected by multiple factors including number of occupants and devices, simultaneous usage, router range etc. For more information speak to your broadband provider.
Map data ©OpenStreetMap contributors.





