
Garage r/o Greenway, Raynes Park, SW20
- PROPERTY TYPE
Land
- SIZE
Ask agent
Key features
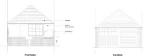
- PLANNING APPROVED FOR A 1 BED DWELLING
- SOUGHT AFTER LONDON LOCATION
- RESIDENTIAL DEVELOPMENT OPPORTUNITY
- IDEAL FOR DEVELOPERS AND ARCHITECTS
Description
- Train stations - Raynes Park (0.6 miles) Motspur Park (0.6 miles) and South Merton (1 mile)
- Sports and leisure centres - David Lloyds (0.5 miles) Raynes Park Playing Fields (0.3 miles) and Raynes Park Residents Lawn Tennis Club (0.3 miles)
- Education - Raynes Park High School, Sacred Heart Catholic Primary School & Nursery, Joseph Hood Primary School and Coombe Boys School
Garage r/o Greenway, Raynes Park, SW20
NEAREST STATIONS
Distances are straight line measurements from the centre of the postcode- Motspur Park Station0.6 miles
- Raynes Park Station0.6 miles
- Wimbledon Chase Station0.9 miles
Notes
Disclaimer - Property reference KLL_LND_LFSYCL_1157_1283487791. The information displayed about this property comprises a property advertisement. Rightmove.co.uk makes no warranty as to the accuracy or completeness of the advertisement or any linked or associated information, and Rightmove has no control over the content. This property advertisement does not constitute property particulars. The information is provided and maintained by Kallars, Sidcup. Please contact the selling agent or developer directly to obtain any information which may be available under the terms of The Energy Performance of Buildings (Certificates and Inspections) (England and Wales) Regulations 2007 or the Home Report if in relation to a residential property in Scotland.
Map data ©OpenStreetMap contributors.











