
John Rushton Drive, Priorslee, Telford, Shropshire, TF2

- PROPERTY TYPE
Detached
- BEDROOMS
3
- BATHROOMS
2
- SIZE
Ask agent
- TENUREDescribes how you own a property. There are different types of tenure - freehold, leasehold, and commonhold.Read more about tenure in our glossary page.
Freehold
Key features
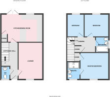
- Entrance Hall
- Cloaks/Wc
- Lounge with built in shelving unit
- Open plan Kitchen/Dining Room
- Breakfast Bar
- En Suite Shower Room
- Family Bathroom
Description
The accommodation comprises an entrance hallway with a cloaks/WC. The lounge features a double glazed window to the front aspect along with built-in shelving and storage. The open plan kitchen/diner is fitted with an attractive range of units and a breakfast bar with a wine fridge below. Integrated appliances include a dishwasher, washing machine, gas hob, electric oven and fridge/freezer. There is also a useful storage cupboard, a double-glazed window and French doors opening out to the garden.
On the first floor, the master bedroom benefits from an en-suite shower room. There are two further bedrooms and a family bathroom fitted with a shower and shower screen.
Externally, the front garden is laid to lawn and a driveway runs alongside the property, providing ample off-road parking. The rear garden features a patio area and lawn, ideal for outdoor relaxation and entertaining
Agents Notes:
Service Charge- £150 per annum
All services are mains connected
Driveway parking
Mobile coverage from all four major networks available*
Ultrafast broadband available*
*Results provided by Ofcom and correct at time of listing
Anti-Money Laundering (AML) Regulations
We are required by law to conduct anti-money laundering checks on all those buying a property. DB Roberts retain responsibility for ensuring checks and any ongoing monitoring are carried out correctly. The initial checks are performed using Movebutler. The cost of these checks is £20 (incl. VAT) for the first buyer and £10 (incl. VAT) for every additional buyer. This fee covers the cost of obtaining relevant data and any manual checks or monitoring which might be required. This fee will need to be paid by you in advance, ahead of us issuing a memorandum of sale and is non-refundable.
Entrance Hall
Cloaks/WC
Lounge
4.7m x 3.1m
Kitchen/Dining Room
5.2m x 3.5m
First Floor Landing
Master Bedroom
3.4m x 3.6m
En Suite Shower Room
2.3m x 1.6m
Bedroom
3.2m x 2.8m
Bedroom
2.8m x 2m
Bathroom
1.9m x 1.7m
Brochures
Particulars- COUNCIL TAXA payment made to your local authority in order to pay for local services like schools, libraries, and refuse collection. The amount you pay depends on the value of the property.Read more about council Tax in our glossary page.
- Band: D
- PARKINGDetails of how and where vehicles can be parked, and any associated costs.Read more about parking in our glossary page.
- Driveway
- GARDENA property has access to an outdoor space, which could be private or shared.
- Yes
- ACCESSIBILITYHow a property has been adapted to meet the needs of vulnerable or disabled individuals.Read more about accessibility in our glossary page.
- Ask agent
John Rushton Drive, Priorslee, Telford, Shropshire, TF2
Add an important place to see how long it'd take to get there from our property listings.
__mins driving to your place
Get an instant, personalised result:
- Show sellers you’re serious
- Secure viewings faster with agents
- No impact on your credit score



Affordability
Notes
Staying secure when looking for property
Ensure you're up to date with our latest advice on how to avoid fraud or scams when looking for property online.
Visit our security centre to find out moreDisclaimer - Property reference TTC260297. The information displayed about this property comprises a property advertisement. Rightmove.co.uk makes no warranty as to the accuracy or completeness of the advertisement or any linked or associated information, and Rightmove has no control over the content. This property advertisement does not constitute property particulars. The information is provided and maintained by D B Roberts & Partners, Telford. Please contact the selling agent or developer directly to obtain any information which may be available under the terms of The Energy Performance of Buildings (Certificates and Inspections) (England and Wales) Regulations 2007 or the Home Report if in relation to a residential property in Scotland.
*This is the average speed from the provider with the fastest broadband package available at this postcode. The average speed displayed is based on the download speeds of at least 50% of customers at peak time (8pm to 10pm). Fibre/cable services at the postcode are subject to availability and may differ between properties within a postcode. Speeds can be affected by a range of technical and environmental factors. The speed at the property may be lower than that listed above. You can check the estimated speed and confirm availability to a property prior to purchasing on the broadband provider's website. Providers may increase charges. The information is provided and maintained by Decision Technologies Limited. **This is indicative only and based on a 2-person household with multiple devices and simultaneous usage. Broadband performance is affected by multiple factors including number of occupants and devices, simultaneous usage, router range etc. For more information speak to your broadband provider.
Map data ©OpenStreetMap contributors.





