
Ilkeston Road, Stapleford

- PROPERTY TYPE
Detached
- BEDROOMS
4
- BATHROOMS
2
- SIZE
Ask agent
- TENUREDescribes how you own a property. There are different types of tenure - freehold, leasehold, and commonhold.Read more about tenure in our glossary page.
Freehold
Key features
- NEW BUILD SEMI DETACHED HOUSE
- PEVERIL HOMES DEVELOPMENT
- DRIVEWAY PARKING
- POPULAR LOCATION
- EASY ACCESS TO GOOD SCHOOLS
- 1066SQFT
- CONTACT ROBERT ELLIS FOR MORE INFORMATION
Description
**THE BOSWORTH**
Four bedroom, two bathroom semi detached house.
Developed by Peveril Homes.
1066SQFT
Viewings and further information via Robert Ellis Stapleford - .
WELCOME TO FIELD FARM.
*THE BOSWORTH*
Robert Ellis are delighted to welcome Field Farm, Stapleford developed by Peveril Homes.
The Bosworth is a spacious four-bedroom family home. The ground floor hallway leads to a full-length lounge with a bay window and French doors to the rear garden. Adjacent to the lounge is an open-plan kitchen and dining area.
On the first floor, you will find four good-sized bedrooms as well as a large family bathroom.
Air Source Heat Pump
Underfloor Heating
EV Charger
Wardrobes to Master
Integrated Appliances*
Field Farm offers a stunning mix of two, three, four, and five-bedroom new builds which have been designed to reflect the rich history and character of the surrounding area. This house for sale in Nottinghamshire will allow you and your family to enjoy a lifestyle that perfectly blends the tranquil countryside and the nearby bustling town of Stapleford.
Measuring approx 1066SQFT.
Situated on the outer rim of Stapleford, bordering Trowell, the site is ideally located close to a range of nearby transport links such as the A52, M1 and Nottingham Tram line as well as good local schooling and nearby shopping and the countryside.
For more information contact Robert Ellis on .
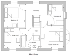
Hallway -
Lounge - 5.98 x 3.05 (19'7" x 10'0") -
Family Dining Kitchen - 2.98 x 2.73 (9'9" x 8'11") -
Utility Area -
Wc -
Landing -
Master Bedroom - 3.10 x 3.07 (10'2" x 10'0") -
Bedroom 2 - 3.19 x 2.88 (10'5" x 9'5") -
Bedroom 3 - 2.70 x 2.21 (8'10" x 7'3") -
Bedroom 4 - 2.81 x 2.09 (9'2" x 6'10") -
Family Bathroom -
Driveway Parking -
Peace Of Mind - Each home will be independently surveyed during construction by LABC, who will issue their 10 year warranty certificate on completion of each home.
A NEW BUILD, THREE BEDROOM SEMI DETACHED HOUSE.
Brochures
Ilkeston Road, StaplefordBrochure- COUNCIL TAXA payment made to your local authority in order to pay for local services like schools, libraries, and refuse collection. The amount you pay depends on the value of the property.Read more about council Tax in our glossary page.
- Ask agent
- PARKINGDetails of how and where vehicles can be parked, and any associated costs.Read more about parking in our glossary page.
- Yes
- GARDENA property has access to an outdoor space, which could be private or shared.
- Yes
- ACCESSIBILITYHow a property has been adapted to meet the needs of vulnerable or disabled individuals.Read more about accessibility in our glossary page.
- Ask agent
Energy performance certificate - ask agent
Ilkeston Road, Stapleford
Add an important place to see how long it'd take to get there from our property listings.
__mins driving to your place
Get an instant, personalised result:
- Show sellers you’re serious
- Secure viewings faster with agents
- No impact on your credit score
Your mortgage
Notes
Staying secure when looking for property
Ensure you're up to date with our latest advice on how to avoid fraud or scams when looking for property online.
Visit our security centre to find out moreDisclaimer - Property reference 34489262. The information displayed about this property comprises a property advertisement. Rightmove.co.uk makes no warranty as to the accuracy or completeness of the advertisement or any linked or associated information, and Rightmove has no control over the content. This property advertisement does not constitute property particulars. The information is provided and maintained by Robert Ellis, Stapleford. Please contact the selling agent or developer directly to obtain any information which may be available under the terms of The Energy Performance of Buildings (Certificates and Inspections) (England and Wales) Regulations 2007 or the Home Report if in relation to a residential property in Scotland.
*This is the average speed from the provider with the fastest broadband package available at this postcode. The average speed displayed is based on the download speeds of at least 50% of customers at peak time (8pm to 10pm). Fibre/cable services at the postcode are subject to availability and may differ between properties within a postcode. Speeds can be affected by a range of technical and environmental factors. The speed at the property may be lower than that listed above. You can check the estimated speed and confirm availability to a property prior to purchasing on the broadband provider's website. Providers may increase charges. The information is provided and maintained by Decision Technologies Limited. **This is indicative only and based on a 2-person household with multiple devices and simultaneous usage. Broadband performance is affected by multiple factors including number of occupants and devices, simultaneous usage, router range etc. For more information speak to your broadband provider.
Map data ©OpenStreetMap contributors.









