Kettlewell Court, Swanley, Kent, BR8

- PROPERTY TYPE
End of Terrace
- BEDROOMS
3
- BATHROOMS
1
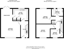
- SIZE
788 sq ft
73 sq m
- TENUREDescribes how you own a property. There are different types of tenure - freehold, leasehold, and commonhold.Read more about tenure in our glossary page.
Freehold
Key features
- End of Terrace
- 73.2sq.m (788sq.ft)
- 3 Bedrooms
- 6.19m x 4.24m Lounge/Dining Room
- Close to Schools
- 0.8 Miles to Station
Description
Positioned within walking distance of Swanley Park and less than a mile from Swanley Station, this attractive three-bedroom family home combines bright and practical living space with excellent transport connections, including easy access to Junction 3 of the M25. Offering open-plan lounge/dining space, a private rear garden and access to highly regarded local schools, including potential Dartford Grammar catchment considerations, this is an ideal home for growing families and commuters alike.
Exterior
Rear Garden 9.8m x 8.4m (32' x 27'6")
Front Garden
Key Terms
This property is Freehold
Build Type - Traditional
Built circa 1970's
Sevenoaks District Council Tax Band C
The annual Council Tax for a Band C property in Swanley is £2,159.39 for the 2025/26 tax year
The property has been in current ownership for 6 years
Approximate Internal Area is approximately 73.2sq.m (788sq.ft)
Utilities: Mains Gas, Electricity, Water and Drainage
The boiler is a gas combination boiler and is located on the first floor. It was a new installation 2025.
Outside is a South/East facing rear garden measuring approximately 9.8m x 8.4m (32' x 27'6")
From the garden there is pedestrian access to the front.
Parking is located nearby and is currently unofficial.
There is no estate charge - We understand it may be possible to acquire allocated parking and that this would incur an estate charge.
We understand that in their current ownership, the vendors have redecorated throughout, recently (2025) installed a new boiler as well as updated the boundary fencing in the rear garden. Also of note, the loft is recently insulated, and the gutters have been cleaned
The sale will form part of a buying and selling chain
Swanley Station is located a 0.8 mile walk away.
Close by are several primary schools, secondary schools and even Dartford and Wilmington Grammar Schools.
Swanley Park and White Oak Leisure Centre are also nearby
The above information has been compiled from information provided by the vendor and publicly accessible sources
Entrance Hall
Lounge/Dining Room
20' 4" x 13' 11" (6.19m x 4.24m)
Kitchen
11' 2" x 8' 6" (3.4m x 2.6m)
First Floor Landing
Bedroom
13' 7" x 9' 7" (4.13m x 2.91m)
Bedroom
10' 10" x 10' 9" (3.29m x 3.28m)
Bedroom
6' 9" x 6' 2" (2.05m x 1.89m)
Bathroom
8' 5" x 5' 5" (2.57m x 1.64m)
Brochures
Particulars- COUNCIL TAXA payment made to your local authority in order to pay for local services like schools, libraries, and refuse collection. The amount you pay depends on the value of the property.Read more about council Tax in our glossary page.
- Band: C
- PARKINGDetails of how and where vehicles can be parked, and any associated costs.Read more about parking in our glossary page.
- Yes
- GARDENA property has access to an outdoor space, which could be private or shared.
- Yes
- ACCESSIBILITYHow a property has been adapted to meet the needs of vulnerable or disabled individuals.Read more about accessibility in our glossary page.
- No wheelchair access
Kettlewell Court, Swanley, Kent, BR8
Add an important place to see how long it'd take to get there from our property listings.
__mins driving to your place
Affordability
Get an instant, personalised result:
- Show sellers you’re serious
- Secure viewings faster with agents
- No impact on your credit score
Notes
Staying secure when looking for property
Ensure you're up to date with our latest advice on how to avoid fraud or scams when looking for property online.
Visit our security centre to find out moreDisclaimer - Property reference SWL230211. The information displayed about this property comprises a property advertisement. Rightmove.co.uk makes no warranty as to the accuracy or completeness of the advertisement or any linked or associated information, and Rightmove has no control over the content. This property advertisement does not constitute property particulars. The information is provided and maintained by Robinson Jackson, Swanley Resale. Please contact the selling agent or developer directly to obtain any information which may be available under the terms of The Energy Performance of Buildings (Certificates and Inspections) (England and Wales) Regulations 2007 or the Home Report if in relation to a residential property in Scotland.
*This is the average speed from the provider with the fastest broadband package available at this postcode. The average speed displayed is based on the download speeds of at least 50% of customers at peak time (8pm to 10pm). Fibre/cable services at the postcode are subject to availability and may differ between properties within a postcode. Speeds can be affected by a range of technical and environmental factors. The speed at the property may be lower than that listed above. You can check the estimated speed and confirm availability to a property prior to purchasing on the broadband provider's website. Providers may increase charges. The information is provided and maintained by Decision Technologies Limited. **This is indicative only and based on a 2-person household with multiple devices and simultaneous usage. Broadband performance is affected by multiple factors including number of occupants and devices, simultaneous usage, router range etc. For more information speak to your broadband provider.
Map data ©OpenStreetMap contributors.





