Victoria Road, Bridlington, YO15 2AT
- PROPERTY TYPE
Residential Development
- SIZE
Ask agent
Description
The property was previously let at an annual rent of £64,500 but has since become vacant and has also been vandalised. The site offers significant redevelopment potential, subject to planning approval.
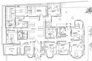
Accommodation
DESCRIPTION AREA Main Building Sq M Sq Ft Ground Floor Waiting Area, Pharmacy, Various Consulting Rooms, Offices 369.01 3,972 First Floor Consulting Rooms and Offices 107.33 1,155 Watson Building Ground Floor Reception, Three Consulting Rooms and WC 67.02 721 TOTAL NET INTERNAL AREA 543.36 5,848EPC
C74
Services
The property is believed to be connected to mains gas, electricity, water and drainage. None of the services or installations have been tested.
Viewing
Strictly by appointment with the Auctioneers on or the joint agents PPH Commercial on .
Tenure
Freehold with vacant possession.
Business Rates
Business Rates are payable to East Riding of Yorkshire Council. The premises have a current rateable value of £26,000, reducing to £23,500 on 1st April 2026.
Method of Sale
The property will be offered for sale by online auction with bidding commencing at 12 noon on Monday, 23rd March 2026 and closing on Wednesday, 25th March 2026 at 1.00 pm. For further legal information relating to this lot, please log on to auctionhouse.co.uk/hullandeastyorkshire.
Conditions of Sale
The property will be sold subject to conditions of sale, copies of which will be available for inspection at the auctioneer’s offices, with the solicitors and on-line at auctionhouse.co.uk/hullandeastyorkshire prior to the date of the auction.
Joint Agents
PPH Commercial, First Floor Pavilion House, Hesslewood Office Park, Ferriby Road, Hessle HU13 0LG. FTAO Ben Cooper. Tel:
Additional Fees
The purchaser will be required to pay an administration charge of 0.3% subject to a minimum of £900 (£750 plus VAT) and a buyer’s premium of £900 (£750 + VAT) in addition to the purchase price of the property.
Guide Price
Guides are provided as an indication of each seller's minimum expectation. They are not necessarily figures which a property will sell for and may change at any time prior to the auction. Each property will be offered subject to a Reserve (a figure below which the Auctioneer cannot sell the property during the auction) which we expect will be set within the Guide Range or no more than 10% above a single figure Guide.
Disbursements
Please see the legal pack for any disbursements listed that may become payable by the purchaser on completion.
Solicitors
Schofield Sweeney, Centura, Wellington Street, Leeds, West Yorkshire, LS1 2AY. Ref: Tom Jackson. Tel:
Victoria Road, Bridlington, YO15 2AT
NEAREST STATIONS
Distances are straight line measurements from the centre of the postcode- Bridlington Station0.3 miles
- Bempton Station3.0 miles
Notes
Disclaimer - Property reference dah_1299755573. The information displayed about this property comprises a property advertisement. Rightmove.co.uk makes no warranty as to the accuracy or completeness of the advertisement or any linked or associated information, and Rightmove has no control over the content. This property advertisement does not constitute property particulars. The information is provided and maintained by Auction House, Driffield. Please contact the selling agent or developer directly to obtain any information which may be available under the terms of The Energy Performance of Buildings (Certificates and Inspections) (England and Wales) Regulations 2007 or the Home Report if in relation to a residential property in Scotland.
Auction Fees: The purchase of this property may include associated fees not listed here, as it is to be sold via auction. To find out more about the fees associated with this property please call Auction House, Driffield on 01377 310913.
*Guide Price: An indication of a seller's minimum expectation at auction and given as a Guide Price or a range of Guide Prices. This is not necessarily the figure a property will sell for and is subject to change prior to the auction.
Reserve Price: Each auction property will be subject to a Reserve Price below which the property cannot be sold at auction. Normally the Reserve Price will be set within the range of Guide Prices or no more than 10% above a single Guide Price.
Map data ©OpenStreetMap contributors.






