
Thalia Avenue, Nantwich

- PROPERTY TYPE
Semi-Detached
- BEDROOMS
3
- BATHROOMS
3
- SIZE
Ask agent
- TENUREDescribes how you own a property. There are different types of tenure - freehold, leasehold, and commonhold.Read more about tenure in our glossary page.
Freehold
Key features
- Semi Detached House
- Versatile Interior
- Three Bedrooms
- Three Bathrooms
- Garage & Gardens
- No Chain
Description
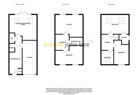
Ground Floor
Entrance Hall
Offering composite front door, radiator, built-in cloaks cupboard, under stairs storage cupboard and stairs to first floor.
Kitchen/Dining/Family Room
15'6 (max) x 14'4 (max)
Offering fitted base, wall and full height units, extensive work surfaces, stainless steel sink unit with mixer tap, integral electric double oven, six burner gas hob with glass splashback, wide chimney style cooker hood with lighting, integral ridge and freezer, integral dishwasher, radiator and uPVC double glazed French doors to rear garden with uPVC double glazed windows to either side.
Downstairs WC
Offering pedestal wash hand basin with monobloc mixer tap, low level push button flus wc and radiator.
First Floor Landing
Offering radiator and stairs to second floor.
Lounge
15'6 (max) x 12'7 (max)
Offering two radiators and two uPVC double glazed windows to rear elevation with fitted plantation shutters.
Bedroom Two
15'6 (max) x 10'8 (max)
Offering radiator and two uPVC double glazed windows to front elevation.
Shower Room
Offering generous size shower cubicle with mixer shower, pedestal wash hand basin with monobloc mixer tap, low level push button flush wc and heated towel rail.
Second Floor Landing
Offering built in airing cupboard
Bedroom One
15'6 x 11'0
Offering radiator and two double glazed roof windows.
En Suite Shower Room
Offering generous size shower cubicle with mixer shower, pedestal wash hand basin with monobloc mixer tap, low level push button flush wc, electric shaver point, heated towel rail and uPVC double glazed window to side elevation.
Bedroom Three
13'10 (max) x 8'6 (max)
Offering radiator, access to loft space and uPVC double glazed window to front elevation.
Bathroom
Offering panelled bath with monobloc filler tap, pedestal wash hand basin with monobloc mixer tap, low level push button flush wc, heated towel rail and double glazed roof window.
Outside
Garage
The property has an integral garage with fitted base and wall units, plumbing for a washing machine, lighting, power points, up and over door and courtesy door to hall.
Gardens
The property has an open aspect to the front with parking for two cars. The rear garden is enclosed to offer composite decking entertaining area with high quality metal framed gazebo, lawn and paved patio and path.
Agents Note
The property is freehold. Council Tax Band D
Disclaimer
Butters John Bee Estate Agents also offer a professional, ARLA accredited Lettings and Management Service. If you are considering purchasing your property in order to rent, are looking at buy to let or would like a free review of your current portfolio then please call the Lettings Branch Manager on the number shown above.
Butters John Bee Estate Agents is the seller's agent for this property. Your conveyancer is legally responsible for ensuring any purchase agreement fully protects your position. We make detailed enquiries of the seller to ensure the information provided is as accurate as possible. Please inform us if you become aware of any information being inaccurate.
Brochures
Material InformationBrochure- COUNCIL TAXA payment made to your local authority in order to pay for local services like schools, libraries, and refuse collection. The amount you pay depends on the value of the property.Read more about council Tax in our glossary page.
- Ask agent
- PARKINGDetails of how and where vehicles can be parked, and any associated costs.Read more about parking in our glossary page.
- Yes
- GARDENA property has access to an outdoor space, which could be private or shared.
- Yes
- ACCESSIBILITYHow a property has been adapted to meet the needs of vulnerable or disabled individuals.Read more about accessibility in our glossary page.
- Ask agent
Thalia Avenue, Nantwich
Add an important place to see how long it'd take to get there from our property listings.
__mins driving to your place
Get an instant, personalised result:
- Show sellers you’re serious
- Secure viewings faster with agents
- No impact on your credit score
Your mortgage
Notes
Staying secure when looking for property
Ensure you're up to date with our latest advice on how to avoid fraud or scams when looking for property online.
Visit our security centre to find out moreDisclaimer - Property reference 0908_BJB090804077. The information displayed about this property comprises a property advertisement. Rightmove.co.uk makes no warranty as to the accuracy or completeness of the advertisement or any linked or associated information, and Rightmove has no control over the content. This property advertisement does not constitute property particulars. The information is provided and maintained by Butters John Bee, Nantwich. Please contact the selling agent or developer directly to obtain any information which may be available under the terms of The Energy Performance of Buildings (Certificates and Inspections) (England and Wales) Regulations 2007 or the Home Report if in relation to a residential property in Scotland.
*This is the average speed from the provider with the fastest broadband package available at this postcode. The average speed displayed is based on the download speeds of at least 50% of customers at peak time (8pm to 10pm). Fibre/cable services at the postcode are subject to availability and may differ between properties within a postcode. Speeds can be affected by a range of technical and environmental factors. The speed at the property may be lower than that listed above. You can check the estimated speed and confirm availability to a property prior to purchasing on the broadband provider's website. Providers may increase charges. The information is provided and maintained by Decision Technologies Limited. **This is indicative only and based on a 2-person household with multiple devices and simultaneous usage. Broadband performance is affected by multiple factors including number of occupants and devices, simultaneous usage, router range etc. For more information speak to your broadband provider.
Map data ©OpenStreetMap contributors.








