
Bagshot, Surrey, GU19

- PROPERTY TYPE
Semi-Detached
- BEDROOMS
2
- BATHROOMS
1
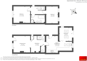
- SIZE
925 sq ft
86 sq m
- TENUREDescribes how you own a property. There are different types of tenure - freehold, leasehold, and commonhold.Read more about tenure in our glossary page.
Freehold
Key features
- Extended on the ground floor
- Large front garden boasting generous parking
- Lounge diner
- Downstairs cloakroom
- Excellent size kitchen with side access
- Extended family room overlooking the garden
- Two double bedrooms and a family bathroom
- Beautiful rear garden with picturesque views
- Moments away from Swinley Forest
- Access to Bagshot village and amenities within a mile
Description
Set within a wonderful location, is this well presented and skillfully extended two bedroom semi detached home. The property benefits from an excellent frontage and a stunning, mature rear garden backing directly onto Swinley Forest. Offered to the market with no onward chain.
Property Details
Upon entering, you are welcomed into a bright and spacious lounge diner, ideal for both relaxing and entertaining. The ground floor also features a convenient downstairs cloakroom and a generous-sized kitchen, thoughtfully arranged and benefitting from side access.
To the rear, the property has been extended to create a superb additional reception space. This versatile area can be adapted to suit a variety of needs whether as a family room, hobby area or home office and enjoys direct access onto the garden, creating a seamless connection between indoor and outdoor living.
Upstairs, the home continues to impress with two well-proportioned double bedrooms and a family bathroom.
Externally, the property boasts a large front garden providing ample parking. The generous, mature rear garden is a true highlight, backing onto woodland and offering charming views, while being surrounded by established trees and shrubs. The garden also benefits from several sheds, providing excellent storage solutions.
The property benefits from potential to further extend STPP.
Internal viewings are highly recommended, as properties in this sought-after location rarely become available.
Video Viewings:
If proceeding without a physical viewing please note that you must make all necessary additional investigations to satisfy yourself that all requirements you have of the property will be met. Video content and other marketing materials shown are believed to fairly represent the property at the time they were created.
Brochures
More details from Chancellors- COUNCIL TAXA payment made to your local authority in order to pay for local services like schools, libraries, and refuse collection. The amount you pay depends on the value of the property.Read more about council Tax in our glossary page.
- Band: D
- PARKINGDetails of how and where vehicles can be parked, and any associated costs.Read more about parking in our glossary page.
- Off street
- GARDENA property has access to an outdoor space, which could be private or shared.
- Private garden
- ACCESSIBILITYHow a property has been adapted to meet the needs of vulnerable or disabled individuals.Read more about accessibility in our glossary page.
- Ask agent
Bagshot, Surrey, GU19
Add an important place to see how long it'd take to get there from our property listings.
__mins driving to your place
Get an instant, personalised result:
- Show sellers you’re serious
- Secure viewings faster with agents
- No impact on your credit score
Your mortgage
Notes
Staying secure when looking for property
Ensure you're up to date with our latest advice on how to avoid fraud or scams when looking for property online.
Visit our security centre to find out moreDisclaimer - Property reference 6112192. The information displayed about this property comprises a property advertisement. Rightmove.co.uk makes no warranty as to the accuracy or completeness of the advertisement or any linked or associated information, and Rightmove has no control over the content. This property advertisement does not constitute property particulars. The information is provided and maintained by Chancellors, Lightwater. Please contact the selling agent or developer directly to obtain any information which may be available under the terms of The Energy Performance of Buildings (Certificates and Inspections) (England and Wales) Regulations 2007 or the Home Report if in relation to a residential property in Scotland.
*This is the average speed from the provider with the fastest broadband package available at this postcode. The average speed displayed is based on the download speeds of at least 50% of customers at peak time (8pm to 10pm). Fibre/cable services at the postcode are subject to availability and may differ between properties within a postcode. Speeds can be affected by a range of technical and environmental factors. The speed at the property may be lower than that listed above. You can check the estimated speed and confirm availability to a property prior to purchasing on the broadband provider's website. Providers may increase charges. The information is provided and maintained by Decision Technologies Limited. **This is indicative only and based on a 2-person household with multiple devices and simultaneous usage. Broadband performance is affected by multiple factors including number of occupants and devices, simultaneous usage, router range etc. For more information speak to your broadband provider.
Map data ©OpenStreetMap contributors.








