
Bredon, Tewkesbury, Gloucestershire

- PROPERTY TYPE
Detached
- BEDROOMS
3
- BATHROOMS
1
- SIZE
Ask agent
- TENUREDescribes how you own a property. There are different types of tenure - freehold, leasehold, and commonhold.Read more about tenure in our glossary page.
Freehold
Key features
- A lovely three bedroom detached cottage, located in this highly sought after village
- Situated within close proximity to all of the villages amenities
- Double garage and driveway parking for three vehicles
- Wonderfully mature and relatively private garden enjoying seating areas and lawns
- Central entrance hall, two formal reception rooms: Living room and Dining room
- Furthermore, the ground floor enjoys an extended kitchen/breakfast room and cloakroom
- To the upper floor are three bedrooms, comprising two double rooms and one single bedroom
- A spacious four piece, family bathroom completes the internal accommodation
- The property is at a stage where one can apply their own stamp to the home
- Viewing is highly recommended
Description
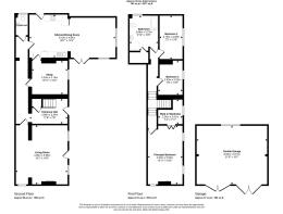
Internally the property is accessed via the welcoming, central entrance hall where to the head of the room, an inner hallway runs left and right providing access to the two formal reception rooms, the spacious and extended kitchen/dining room and the final room, being the cloakroom.
The living room is a wonderful size and enjoys plenty of natural light due to two windows and a full-length glazed door that allows access to the garden. Providing a focal point to the room is the open fire which is inset to the chimney breast
The second reception room would have historically been the dining room but due to the kitchen extension, this room is currently used as the study but could be utilised for a wealth of different purposes to include: craft room, playroom or even a snug
The final room to the ground floor is the wonderfully spacious kitchen/dining room. The kitchen enjoys a wealth of units which sit alongside a host of integrated appliances. The dining area is lovely and light and allows views and access to the garden whilst also comfortably housing a six eight seater table and chairs
Upstairs are three bedrooms and the family bathroom. The principal bedroom is a lovely size and benefits from a walk-in wardrobe. Bedroom two is also a double room with bedroom three being a single room. The family bathroom is a four-piece bathroom and as such enjoys a bath and freestanding, walk in shower.
Externally, the property benefits from driveway parking for three four vehicles and furthermore enjoys an attached double garage that offers light, power and roof storage. The garden is mature and full of colour. Fully enclosed, the garden features a paved terrace, lawns, expansive and colourful flower beds as well as a fine selection of trees and shrubs.
Location
Bredon is a highly desirable village to live in, providing a home for people of all ages. The appeal of the village is its wealth of local amenities within walking distance, a shop, a post office, a doctor`s surgery, a village hall, a church, village infant/primary school (OFSTED outstanding` rating), a preschool and two public houses. For those interested in activity and other pursuits, there are a number of local clubs and societies as well as sports clubs offering bowls, football, rugby, cricket, tennis, playing fields, sailing, the river, and the local marina.
The village is named after Bredon Hill, which boasts spectacular views and pathways for walking, running, cycling, and horseback riding.
Directions
To locate the property, please enter the following postcode into your sat nav system: GL20 7NA. Upon arrival the property can be identified by our For Sale sign
what3words /// abstracts.shred.dentistry
Notice
Please note we have not tested any apparatus, fixtures, fittings, or services. Interested parties must undertake their own investigation into the working order of these items. All measurements are approximate and photographs provided for guidance only.
Brochures
Web Details- COUNCIL TAXA payment made to your local authority in order to pay for local services like schools, libraries, and refuse collection. The amount you pay depends on the value of the property.Read more about council Tax in our glossary page.
- Band: F
- PARKINGDetails of how and where vehicles can be parked, and any associated costs.Read more about parking in our glossary page.
- Garage,Off street
- GARDENA property has access to an outdoor space, which could be private or shared.
- Private garden
- ACCESSIBILITYHow a property has been adapted to meet the needs of vulnerable or disabled individuals.Read more about accessibility in our glossary page.
- Ask agent
Energy performance certificate - ask agent
Bredon, Tewkesbury, Gloucestershire
Add an important place to see how long it'd take to get there from our property listings.
__mins driving to your place
Get an instant, personalised result:
- Show sellers you’re serious
- Secure viewings faster with agents
- No impact on your credit score
Your mortgage
Notes
Staying secure when looking for property
Ensure you're up to date with our latest advice on how to avoid fraud or scams when looking for property online.
Visit our security centre to find out moreDisclaimer - Property reference 3273_FCCH. The information displayed about this property comprises a property advertisement. Rightmove.co.uk makes no warranty as to the accuracy or completeness of the advertisement or any linked or associated information, and Rightmove has no control over the content. This property advertisement does not constitute property particulars. The information is provided and maintained by Hughes Sealey Estate Agents, Tewkesbury. Please contact the selling agent or developer directly to obtain any information which may be available under the terms of The Energy Performance of Buildings (Certificates and Inspections) (England and Wales) Regulations 2007 or the Home Report if in relation to a residential property in Scotland.
*This is the average speed from the provider with the fastest broadband package available at this postcode. The average speed displayed is based on the download speeds of at least 50% of customers at peak time (8pm to 10pm). Fibre/cable services at the postcode are subject to availability and may differ between properties within a postcode. Speeds can be affected by a range of technical and environmental factors. The speed at the property may be lower than that listed above. You can check the estimated speed and confirm availability to a property prior to purchasing on the broadband provider's website. Providers may increase charges. The information is provided and maintained by Decision Technologies Limited. **This is indicative only and based on a 2-person household with multiple devices and simultaneous usage. Broadband performance is affected by multiple factors including number of occupants and devices, simultaneous usage, router range etc. For more information speak to your broadband provider.
Map data ©OpenStreetMap contributors.





