
Swansea, Wales, SA5

- PROPERTY TYPE
Park Home
- BEDROOMS
1
- BATHROOMS
1
- SIZE
Ask agent
- TENUREDescribes how you own a property. There are different types of tenure - freehold, leasehold, and commonhold.Read more about tenure in our glossary page.
Ask agent
Key features
- Part Exchange available
- Fully furnished
- Community living
- Residential development
- Exceptionally high specification
- Brand new home
- Modern design
- Established park
Description
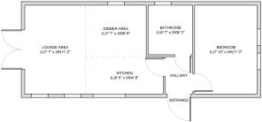
THE HOME
This brand new, modern furnished Omar Newmarket (30'x12') luxury park home is perfect for those looking for a detached, easy-to-maintain, bungalow-style property. The home has a modern kitchen with integrated appliances, a dining area and a comfortable living room. There is one double bedroom and a bathroom.
THE PARK
This home is set on a wonderful, well established residential park development in Swansea, South Wales, for the semi-retired or retired. This development is extremely popular due to its’ excellent location and established friendly community. This development has excellent road links take you to a multitude of areas of outstanding scenery, whether your preference is rolling countryside or spectacular coastal views. Pets permitted when you buy a new home on this park.
LOCAL AREA
At this development your every-day needs can be satisfied in the local shops and pubs; and a short drive away; at forestfach Retail Park, you can acquire almost anything thanks to the variety of well-known high street stores. The real jewel in the crown of this location is the proximity of some of the most outstanding British countryside you are ever likely to see. The nearby Gower Peninsula coastline was declared the UK’s first Area of Outstanding Natural Beauty in 1956, and nothing has been done to spoil it since!
The Mumbles, is a stunning little seaside resort with so much to do and a wonderland for young children. Equally as convenient, the Millennium Coastal path takes you in the other direction from Llanelli towards Carmarthen. The walk or cycle is largely flat on safe tarmac paths with constant coastal and country views to enjoy along the way, and spots to take a break.
HOUSE TO SELL?
Contact Quickmove for a free, no-obligation Part-Exchange valuation on this home. Enjoy a hassle-free move, with no estate agents’ fees or solicitors to pay. You even get to keep the keys to your existing property for 2 weeks after completion, so you can move out at your leisure.
Note: the images depict a show home and are for illustration purposes. The images may not depict a 100% true representation of the actual property on-site. Specifications and layouts may differ, and some photos may include optional extras.
Site fees (at time of listing): £204.03 per month
Please note that the site fee (also known as pitch fee, or ground rent) is subject to change and reviewed annually. Ground rent can only be increased in line with the Consumer Price Index. For more information, please get in touch.
Tenure: Virtual Freehold
Virtual Freehold means that when buying a park home, you purchase the physical property outright and lease the land it sits on in perpetuity, for the entirety of the time the home is sited. These properties are not mortgageable. Please consult a solicitor for further information.
Council Tax Band: A or B
NOTE: The information in this property listing is correct to the best of our knowledge. We recommend any potential purchaser is aware of all details including park rules and conditions before sale completion. We also recommend consulting the Mobile Homes Act 2013 for conditions of any future sale of this property.
- COUNCIL TAXA payment made to your local authority in order to pay for local services like schools, libraries, and refuse collection. The amount you pay depends on the value of the property.Read more about council Tax in our glossary page.
- Ask agent
- PARKINGDetails of how and where vehicles can be parked, and any associated costs.Read more about parking in our glossary page.
- Yes
- GARDENA property has access to an outdoor space, which could be private or shared.
- Ask agent
- ACCESSIBILITYHow a property has been adapted to meet the needs of vulnerable or disabled individuals.Read more about accessibility in our glossary page.
- Ask agent
Energy performance certificate - ask agent
Swansea, Wales, SA5
Add an important place to see how long it'd take to get there from our property listings.
__mins driving to your place
Notes
Staying secure when looking for property
Ensure you're up to date with our latest advice on how to avoid fraud or scams when looking for property online.
Visit our security centre to find out moreDisclaimer - Property reference 4484. The information displayed about this property comprises a property advertisement. Rightmove.co.uk makes no warranty as to the accuracy or completeness of the advertisement or any linked or associated information, and Rightmove has no control over the content. This property advertisement does not constitute property particulars. The information is provided and maintained by Quickmove Properties, Wiltshire. Please contact the selling agent or developer directly to obtain any information which may be available under the terms of The Energy Performance of Buildings (Certificates and Inspections) (England and Wales) Regulations 2007 or the Home Report if in relation to a residential property in Scotland.
*This is the average speed from the provider with the fastest broadband package available at this postcode. The average speed displayed is based on the download speeds of at least 50% of customers at peak time (8pm to 10pm). Fibre/cable services at the postcode are subject to availability and may differ between properties within a postcode. Speeds can be affected by a range of technical and environmental factors. The speed at the property may be lower than that listed above. You can check the estimated speed and confirm availability to a property prior to purchasing on the broadband provider's website. Providers may increase charges. The information is provided and maintained by Decision Technologies Limited. **This is indicative only and based on a 2-person household with multiple devices and simultaneous usage. Broadband performance is affected by multiple factors including number of occupants and devices, simultaneous usage, router range etc. For more information speak to your broadband provider.
Map data ©OpenStreetMap contributors.





