
The Hollow, West Chiltington, RH20

- PROPERTY TYPE
Detached
- BEDROOMS
4
- BATHROOMS
3
- SIZE
2,392 sq ft
222 sq m
- TENUREDescribes how you own a property. There are different types of tenure - freehold, leasehold, and commonhold.Read more about tenure in our glossary page.
Freehold
Key features
- Outstanding views
- Character features
- Contemporary interior
- Balcony
- Car barn & stables
- Secluded garden with vegetable plot
- Extensively refurbished
- Air Source Heat Pump
- Solar Panels
- Historic Grade II listed property.
Description
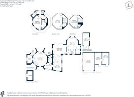
Perfectly adapted for modern living, three of the four bedrooms are within the windmill itself, two with en-suite bathrooms. The striking, octagonal fourth bedroom, mirroring the mill’s distinctive shape, is in the ground floor extension with its own en-suite, but offers scope for myriad uses. The adjacent vaulted dining room has bifold doors onto the garden with the superb, modern kitchen and utility room off it.
One of the highlights of this unique home is the impressively high ceilinged, beamed, octagonal living room, with double doors onto the garden and a staircase up to the reading nook landing. Above it, the main bedroom boasts a balcony with far-reaching views across the wooded countryside—views that are also visible from the upper floor bedrooms. As part of its storied past, the upper floors served as an observation post during the Second World War.
Internal refurbishment was undertaken by the current owners between 2014 and 2020, incorporating underfloor heating, air source heat pump, solar panels, electrics, and bathrooms. Further external works took place in 2023 including painting, replacement of the cap roof, and renewal of the oak balcony.
Outside
The enchanting, secluded, walled garden is bounded by beautifully mature trees, shrubs and floral borders, with additional dedicated kitchen garden. A large car barn with two adjacent former stables and a separate single provide great storage.
Situation
Historic West Chiltington, with its 11th century Church and primary school is very popular. Nearby Storrington has great shopping and amenities with Horsham ca. 11 miles away, providing more extensive amenities. Pulborough's mainline train station (3.3 miles) has direct services to Gatwick and London, with the excellent road links via the A24.
Property Ref Number:
HAM-58121Additional Information
Local Authority - Horsham District Council.
Council Tax Band G.
Brochures
Brochure- COUNCIL TAXA payment made to your local authority in order to pay for local services like schools, libraries, and refuse collection. The amount you pay depends on the value of the property.Read more about council Tax in our glossary page.
- Band: G
- PARKINGDetails of how and where vehicles can be parked, and any associated costs.Read more about parking in our glossary page.
- Garage
- GARDENA property has access to an outdoor space, which could be private or shared.
- Private garden
- ACCESSIBILITYHow a property has been adapted to meet the needs of vulnerable or disabled individuals.Read more about accessibility in our glossary page.
- Ask agent
Energy performance certificate - ask agent
The Hollow, West Chiltington, RH20
Add an important place to see how long it'd take to get there from our property listings.
__mins driving to your place
Get an instant, personalised result:
- Show sellers you’re serious
- Secure viewings faster with agents
- No impact on your credit score
Affordability
Notes
Staying secure when looking for property
Ensure you're up to date with our latest advice on how to avoid fraud or scams when looking for property online.
Visit our security centre to find out moreDisclaimer - Property reference a1nQ500000MFvPbIAL. The information displayed about this property comprises a property advertisement. Rightmove.co.uk makes no warranty as to the accuracy or completeness of the advertisement or any linked or associated information, and Rightmove has no control over the content. This property advertisement does not constitute property particulars. The information is provided and maintained by Hamptons, Horsham. Please contact the selling agent or developer directly to obtain any information which may be available under the terms of The Energy Performance of Buildings (Certificates and Inspections) (England and Wales) Regulations 2007 or the Home Report if in relation to a residential property in Scotland.
*This is the average speed from the provider with the fastest broadband package available at this postcode. The average speed displayed is based on the download speeds of at least 50% of customers at peak time (8pm to 10pm). Fibre/cable services at the postcode are subject to availability and may differ between properties within a postcode. Speeds can be affected by a range of technical and environmental factors. The speed at the property may be lower than that listed above. You can check the estimated speed and confirm availability to a property prior to purchasing on the broadband provider's website. Providers may increase charges. The information is provided and maintained by Decision Technologies Limited. **This is indicative only and based on a 2-person household with multiple devices and simultaneous usage. Broadband performance is affected by multiple factors including number of occupants and devices, simultaneous usage, router range etc. For more information speak to your broadband provider.
Map data ©OpenStreetMap contributors.








