Denmark Street, Diss
- PROPERTY TYPE
Plot
- BEDROOMS
4
- BATHROOMS
3
- SIZE
Ask agent
Key features
- No onward chain
- Full planning permission granted
- Planning ref 2020/2463
- Prime position within town centre
Description
*Development Opportunity*
Situated in a prime location, this building plot is superbly positioned. Just a short walk away from the bustling high street, along with the attractive mere and park. Denmark Street is a stone's throw from Fair Green, boasting a charming array of historic properties, complemented by a café and a well-regarded public house. Diss, an historic market town is situated on the south Norfolk borders within the stunning countryside of the Waveney Valley and offers an excellent range of amenities and facilities within walking distance of the property. Additionally, the town features a mainline railway station providing regular and direct services to London Liverpool Street and Norwich, reachable with just a 15-minute walk.
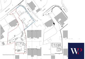
The building plot has full planning permission granted for the erection of a four-bedroom detached house. Planning permission (reference 2020/2463) was approved on 15th February 2021, allowing for the demolition of a former shed/workshop and the creation of a detached house complete with parking and gardens. Some initial works were undertaken after the planning permission was granted, which the agents understand, ensures the permission remains active. As a result any oncoming purchaser will be required to pay the CIL charge (Community Infrastructure Levy) being £12,294.
Once developed, the proposed four-bedroom detached house will offer approximately 175 sqm (1883 sq ft) of living space.
SERVICES:
A purchaser will need to arrange connections with the relevant statutory service providers after completion.
ACCESS:
The proposed dwelling will be accessed via Denmark Street through a partially shared driveway, which will be shared with the existing property and the proposed dwelling upon approach.
AGENTS NOTE: Material Information regarding the property can be found in our Key Facts for Buyers interactive brochure located in the Virtual Tour no. 2 thumbnail.
Anti-Money Laundering Fee Statement
To comply with HMRC's regulations on Anti-Money Laundering (AML), Whittley Parish are legally required to conduct AML checks on every purchaser(s) once a sale is agreed. We use a government-approved electronic identity verification service from Landmark to ensure compliance, accuracy, and security. This is approved by the Government as part of the Digital Identity and Attributes Trust Framework (DIATF).
The cost of anti-money laundering (AML) checks is £50 + VAT (£60 inc VAT) per purchase, payable in advance after an offer has been accepted. This fee to Whittley Parish is mandatory to comply with HMRC regulations and must be paid before a memorandum of sale can be issued. Please note that the fee is non-refundable.
Brochures
Brochure 1Brochure 2Full DetailsDenmark Street, Diss
NEAREST STATIONS
Distances are straight line measurements from the centre of the postcode- Diss Station0.8 miles
Notes
Disclaimer - Property reference S1380068. The information displayed about this property comprises a property advertisement. Rightmove.co.uk makes no warranty as to the accuracy or completeness of the advertisement or any linked or associated information, and Rightmove has no control over the content. This property advertisement does not constitute property particulars. The information is provided and maintained by Whittley Parish, Diss. Please contact the selling agent or developer directly to obtain any information which may be available under the terms of The Energy Performance of Buildings (Certificates and Inspections) (England and Wales) Regulations 2007 or the Home Report if in relation to a residential property in Scotland.
Map data ©OpenStreetMap contributors.









