Fairlight Cross, New Barn, Kent, DA3

- PROPERTY TYPE
Detached
- BEDROOMS
4
- BATHROOMS
1
- SIZE
Ask agent
- TENUREDescribes how you own a property. There are different types of tenure - freehold, leasehold, and commonhold.Read more about tenure in our glossary page.
Freehold
Key features
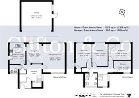
- Four Bedroom 1970’s Detached Family Home
- Entrance Hall & Cloakroom WC
- Sitting Room Open Plan to Dining Room
- Kitchen Breakfast Room
- Central Heating & Double Glazing
- Detached Double Garage & Driveway
- Secluded Rear Garden
- Potential to Extend (STPP)
- Sought After Location
- No Chain Vacant Possession
Description
GUIDE PRICE £550,000 - £600,000
Located within a highly sought-after position in the semi-rural village of New Barn, this charming four-bedroom detached family home, built in the 1970s, offers well-proportioned and versatile accommodation throughout and presents an excellent opportunity for a purchaser to update, extend and create a long-term family home, subject to the usual planning consents. Offered to the market with no forward chain and vacant possession, the property is ready for immediate occupation while also providing clear scope for enhancement.
Stepping inside, a welcoming entrance hall leads through to a cloakroom WC and sets the tone for the spacious layout that follows. The principal reception space is arranged as an open-plan sitting and dining room, creating a bright and sociable environment ideal for both everyday living and entertaining, with large windows and patio doors drawing in natural light and providing a seamless connection to the rear garden. The kitchen breakfast room is well-appointed and enjoys a pleasant outlook over the garden, and further potential to reconfigure if desired.
Upstairs, the property continues to impress with four well-proportioned double bedrooms, all enjoying good natural light and offering flexibility for family living, guest accommodation or home working. These are served by a family bathroom, completing the first-floor accommodation.
Externally, the rear garden provides a private and established setting, with a patio area ideal for outdoor dining and a lawn bordered by mature planting. A notable feature is the detached double garage positioned to the rear, complemented by a generous driveway to the front and side, providing ample off-road parking and further practical appeal.
With its spacious interior, established plot, detached double garage and clear potential for extension or reconfiguration, this is a rare opportunity to acquire a substantial family home in a prime village setting. Early viewing is highly recommended to fully appreciate the potential and lifestyle on offer.
Brochures
Particulars- COUNCIL TAXA payment made to your local authority in order to pay for local services like schools, libraries, and refuse collection. The amount you pay depends on the value of the property.Read more about council Tax in our glossary page.
- Band: F
- PARKINGDetails of how and where vehicles can be parked, and any associated costs.Read more about parking in our glossary page.
- Yes
- GARDENA property has access to an outdoor space, which could be private or shared.
- Yes
- ACCESSIBILITYHow a property has been adapted to meet the needs of vulnerable or disabled individuals.Read more about accessibility in our glossary page.
- Ask agent
Fairlight Cross, New Barn, Kent, DA3
Add an important place to see how long it'd take to get there from our property listings.
__mins driving to your place
Affordability
Get an instant, personalised result:
- Show sellers you’re serious
- Secure viewings faster with agents
- No impact on your credit score
Notes
Staying secure when looking for property
Ensure you're up to date with our latest advice on how to avoid fraud or scams when looking for property online.
Visit our security centre to find out moreDisclaimer - Property reference HAR250161. The information displayed about this property comprises a property advertisement. Rightmove.co.uk makes no warranty as to the accuracy or completeness of the advertisement or any linked or associated information, and Rightmove has no control over the content. This property advertisement does not constitute property particulars. The information is provided and maintained by Clifton & Co Estate Agents, North Kent. Please contact the selling agent or developer directly to obtain any information which may be available under the terms of The Energy Performance of Buildings (Certificates and Inspections) (England and Wales) Regulations 2007 or the Home Report if in relation to a residential property in Scotland.
*This is the average speed from the provider with the fastest broadband package available at this postcode. The average speed displayed is based on the download speeds of at least 50% of customers at peak time (8pm to 10pm). Fibre/cable services at the postcode are subject to availability and may differ between properties within a postcode. Speeds can be affected by a range of technical and environmental factors. The speed at the property may be lower than that listed above. You can check the estimated speed and confirm availability to a property prior to purchasing on the broadband provider's website. Providers may increase charges. The information is provided and maintained by Decision Technologies Limited. **This is indicative only and based on a 2-person household with multiple devices and simultaneous usage. Broadband performance is affected by multiple factors including number of occupants and devices, simultaneous usage, router range etc. For more information speak to your broadband provider.
Map data ©OpenStreetMap contributors.







