Coleridge Road, North Finchley, N12

Letting details
- Let available date:
- 25/04/2026
- Deposit:
- £2,071A deposit provides security for a landlord against damage, or unpaid rent by a tenant.Read more about deposit in our glossary page.
- Min. Tenancy:
- Ask agent How long the landlord offers to let the property for.Read more about tenancy length in our glossary page.
- Let type:
- Long term
- Furnish type:
- Unfurnished
- Council Tax:
- Ask agent
- PROPERTY TYPE
Flat
- BEDROOMS
2
- BATHROOMS
1
- SIZE
Ask agent
Key features
- No Agent Fees
- Students Can Enquire
- Property Reference Number: 2835851
Description
or 2 Bed Flat, North Finchley N12 £1795 per calendar month. With sunny & private garden. Available 12th November 2023.
Spacious, bright 2 bed, first floor flat, 51 square meters.
Only to working professional(s) meeting affordability condition of income =2.5x rent, ie £53,850 per year income before tax (£4488pcm).
The rental price is NOT negotiable.
No property lettings agents & No estate agencies – please don't waste your time!
Council tax & utility bills not included. No agency or hidden fees.
Ideally for long term tenancy for several years (6 month minimum contract)
Ideally seeking a keen gardener!
Council tax (Band C) & utility bills NOT included
Deposit 5 week's rent, rent paid in advance (held by Deposit Protection Scheme)
No agency or hidden fees
Parking on-street (resident permits ~£60pa)
Pre-conditions before applying to view:
· Are you a professional, working individual or couple (maximum number of inhabitants: 1 couple, 1 child) and it is only you who will stay at the property? (occasional guests are allowed for up to a few weeks, any stay for longer than 2 weeks requires prior written permission to and from the landlord)
• Strict affordability: 2.5x rent e.g. ie £53,850 per year (£4488pcm) income before tax - total gross income in last 12 months (combined if sharing) (proof needed by referencing agency – payslips / bank statement / employers reference, no outstanding CCJs, UK Right to Remain or Citizenship). This will all be checked by an independent referencing company. Or a UK based guarantor who meets these criteria.
• Do have / neither of you have any unspent unspent convictionscounty court judgement against your name(s)?
• Are you ok to provide full references & credit check for all tenants: I.D., employment, 1 year bank statements and good references from current & previous landlords?
• Are you a smoker(s)?
• Before signing a tenancy agreement can you pay the 5 week deposit and the first month’s rent (paid in advance)?
• Are you ok with the landlord visiting you in your current home when signing the tenancy agreement?
• What is / are your occupation(s)?
Are you self employed?
• Are you interested in helping improve and maintain the garden?
• When would you like to move?
ONLY if you meet ALL OF THESE CONDITIONS please text to discuss - and then we can arrange a video call.
Description:
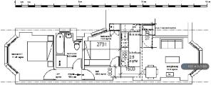
Purpose-built flat (not a conversion), this period property has original features and extends from front to back of the building, with friendly and considerate neighbours. It is on a peaceful residential street, yet just minutes from Tally Ho, Ballards Corner & North Finchley High Street. Modern & clean finish & furnishings. Part-furnished. Gas/electric cooker, fridge/freezer & washing machine/dryer. Gas central heating. Engineered European Oak, hardwood flooring throughout and modern and effective secondary glazing system to all windows. Current EICR Electrical Safety Certificate.
1 large double, 1 small double bedroom. Large living room through to part open-plan kitchen. Spacious, bright bathroom with full-length bath, shower and storage.
Bathroom (1.70 x 1.92m)- spacious with 2 opening windows and newly tiled floors & walls. Powerful mains shower over full-sized bath with quality glass showers screen and large storage & drying cupboard. Full length mirror.
Bedrooms Main bedroom (2.6 x 2.1m) - Large windows in bay, facing east, with views to trees and gardens. 2 built-in wardrobes and full height mirror. Second bedroom /study / nursery (2.70x 2.26m) with built-In storage/wardrobe & large window.
Living room (4.54m into bay x 3.47m) – Large bay windows facing west (original period feature sash windows with secondary glazing).Leads through to part open-plan kitchen with mullion window double doors. Front door with 5-lever mortice lock and secure night latch on Regency Oak 6 Panel Fire Door (rated FD30). Lobby for shoes & coats (2.1x1m). Broadband connections.
Kitchen (3.30x 1.49m) - modern, tiled galley kitchen with fridge/freezer &washing machine/dryer. Ample storage in overhead and worktop cabinets with worktop task lights and illuminated display cabinet. Cooker: 4gas hobs with electric fan oven and extractor fan. Top quality Siemens fridge-freezer.
Communal Stairs & Hallway -
Edwardian-tiled communal areas of house with hardwood flooring to stairs. Individual letterboxes for each flat. Doorbell with intercom and door buzzer entry system. Communal recycling & bin store.
Heating & Additional Storage - Gas central heating & thermostat radiators to allow temperature control in each room. Gas appliances annually serviced with tenants’ Gas Safe certificate. Mains-powered heat detector in kitchen, mains-powered smoke detectors in living room and hallway, carbon monoxide detector with annually-serviced combination boiler. Dehumidifier for additional, quick clothes drying.
Shops etc - There are excellent shopping and other facilities very nearby: Aldi 2 minute walk, Waitrose 6 minute walk, Sainsburys 7 minute walk, post office & banks 3 minute walk. Gym 4 minute walk or women-only gym 6minutes walk. North Finchley Lido Leisure Centre 15 minute walk (Vue 8 screen cinema, gym, indoor &outdoor swimming pools, spa, bowling & kid’s centre). There are also lots of restaurants, bars, cafes and independent retailers.
Transport-Parking is on-street directly in front of the house -a residents parking permit costs around £50 per year. 2 minute walk to North Finchley High Street & the bus station (services to Willesden, Victoria etc), 7 minute walk to the underground (Woodside Park-Northern Line, Zone 4). Covered, secure off-street cycle parking.
Experienced and cooperative landlord using standard Assured Shorthold Tenancy Agreement and the government’s Tenancy Deposit Protection Scheme. An independent company will do the inventory &condition report at check-in and check-out. Note: Not all photos are recent but all rooms will be decorated to at least this standard for tenancy start date.
Summary & Exclusions:
- Rent Amount: £1,795.00 per month (£414.23 per week)
- Deposit / Bond: £2,071.15
- 2 Bedrooms
- 1 Bathrooms
- Property comes unfurnished
- Available to move in from 25 April 2026
- Minimum tenancy term is 2 months
- Maximum number of tenants is 2
- DSS enquiries welcome
- Students welcome to enquire
- Pets considered / by arrangement
- No Smokers
- Family Friendly
- Bills not included
- No Parking Available
- Property has garden access
- EPC Rating: D
If calling, please quote reference: 2835851
Fees:
You will not be charged any admin fees.
** Contact today to book a viewing and have the landlord show you round! **
Request Details form responded to 24/7, with phone bookings available 9am-9pm, 7 days a week.
- COUNCIL TAXA payment made to your local authority in order to pay for local services like schools, libraries, and refuse collection. The amount you pay depends on the value of the property.Read more about council Tax in our glossary page.
- Ask agent
- PARKINGDetails of how and where vehicles can be parked, and any associated costs.Read more about parking in our glossary page.
- Yes
- GARDENA property has access to an outdoor space, which could be private or shared.
- Private garden
- ACCESSIBILITYHow a property has been adapted to meet the needs of vulnerable or disabled individuals.Read more about accessibility in our glossary page.
- Ask agent
Energy performance certificate - ask agent
Coleridge Road, North Finchley, N12
Add an important place to see how long it'd take to get there from our property listings.
__mins driving to your place
Notes
Staying secure when looking for property
Ensure you're up to date with our latest advice on how to avoid fraud or scams when looking for property online.
Visit our security centre to find out moreDisclaimer - Property reference 283585121032026. The information displayed about this property comprises a property advertisement. Rightmove.co.uk makes no warranty as to the accuracy or completeness of the advertisement or any linked or associated information, and Rightmove has no control over the content. This property advertisement does not constitute property particulars. The information is provided and maintained by OpenRent, London. Please contact the selling agent or developer directly to obtain any information which may be available under the terms of The Energy Performance of Buildings (Certificates and Inspections) (England and Wales) Regulations 2007 or the Home Report if in relation to a residential property in Scotland.
*This is the average speed from the provider with the fastest broadband package available at this postcode. The average speed displayed is based on the download speeds of at least 50% of customers at peak time (8pm to 10pm). Fibre/cable services at the postcode are subject to availability and may differ between properties within a postcode. Speeds can be affected by a range of technical and environmental factors. The speed at the property may be lower than that listed above. You can check the estimated speed and confirm availability to a property prior to purchasing on the broadband provider's website. Providers may increase charges. The information is provided and maintained by Decision Technologies Limited. **This is indicative only and based on a 2-person household with multiple devices and simultaneous usage. Broadband performance is affected by multiple factors including number of occupants and devices, simultaneous usage, router range etc. For more information speak to your broadband provider.
Map data ©OpenStreetMap contributors.




