Andalucia, Malaga, Benalmádena, Spain
- PROPERTY TYPE
Detached Villa
- BEDROOMS
4
- BATHROOMS
4
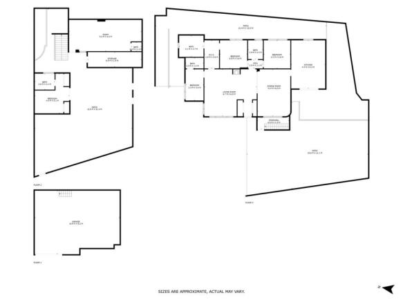
- SIZE
7,072 sq ft
657 sq m
Key features
- close to shops
- close to town
- close to schools
- air conditioning
- guest house
- storage room
- ensuite bathroom
- not furnished
Description
In Capellanía, a quiet and well-connected area of Benalmádena, this property offers a 658 m² plot and 168 m² built area.
In the main house, you'll find 3 bedrooms with 3 full bathrooms. The master suite, with its spacious walk-in closet, is the real showstopper.
The home also features a large, fully equipped kitchen and a bright living-dining room filled with natural light.
An independent guest house (1 bedroom + 1 bathroom) adds flexibility and plenty of possibilities.
Outside, a raised wooden pool awaits—perfect for summer and easy to maintain—along with private parking for several vehicles.
Features: PVC windows with double glazing, air conditioning in both houses, solar panels with a storage tank in the main house, and a 100 L electric water heater in the guest house.
Excellent location, just minutes from the motorway and close to the seaside promenade.
One of the key added values of this property is that the Community of Owners has approved the possibility of applying for and obtaining a HOLIDAY RENTAL LICENSE, opening up an excellent opportunity for both residential use and investment. This means that, in compliance with current regulations and subject to the corresponding administrative procedures, the property may be used for tourist rental purposes, offering attractive potential returns in an area of high demand.
Contact me to arrange a viewing!
Andalucia, Malaga, Benalmádena, Spain
NEAREST AIRPORTS
Distances are straight line measurements- Málaga(International)6.4 miles
- Gibraltar (North Front)(International)54.4 miles
- Jerez(International)84.5 miles
- Sevilla (San Pablo)(International)93.2 miles
Advice on buying Spanish property
Learn everything you need to know to successfully find and buy a property in Spain.
Notes
This is a property advertisement provided and maintained by Home Finder Marbella, Malaga (reference HFMl5167072_EAF_288821) and does not constitute property particulars. Whilst we require advertisers to act with best practice and provide accurate information, we can only publish advertisements in good faith and have not verified any claims or statements or inspected any of the properties, locations or opportunities promoted. Rightmove does not own or control and is not responsible for the properties, opportunities, website content, products or services provided or promoted by third parties and makes no warranties or representations as to the accuracy, completeness, legality, performance or suitability of any of the foregoing. We therefore accept no liability arising from any reliance made by any reader or person to whom this information is made available to. You must perform your own research and seek independent professional advice before making any decision to purchase or invest in overseas property.




