Fivizzano, Lunigiana, Tuscany, Italy
- PROPERTY TYPE
Apartment
- BEDROOMS
2
- BATHROOMS
2
- SIZE
185 sq ft
17 sq m
Key features
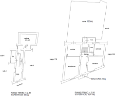
- Approx. 124 sqm on one level
- First-floor position
- Two bedrooms, two bathrooms
- Double living room
- Two balconies (front and rear)
- Character features (terracotta floors, marble staircase)
- Private courtyard garden (approx. 120 sqm)
- Cellar space (approx. 61 sqm)
- Central Via Roma location near Piazza Medicea
- Modernisation potential
Description
The property is accessed via a Carrara marble staircase with original wrought iron balustrades, introducing a material continuity that continues throughout the apartment.
Arranged on the first floor, the internal space extends to approximately 124 sqm across a single level. The current layout includes a double living room, separate kitchen, two bedrooms and two bathrooms, offering a clear and adaptable spatial structure.
Terracotta flooring defines much of the interior, characteristic of the period and consistent in tone. There is also the possibility to introduce a fireplace, reinforcing the domestic centre of the living space.
The front balcony opens towards Via Roma and the entrance to Piazza Medicea, where the town's cultural and seasonal life unfolds. The slightly elevated position creates a sense of distance and perspective, allowing the movement of the street to be observed rather than directly entered.
From here, the space flows through to the kitchen and a second rear balcony, leading to a private courtyard garden of approximately 120 sqm. Enclosed and set behind the building, this outdoor space offers a quieter counterpoint to the street - suitable for low-maintenance, year-round use.
At ground level, a cellar of approximately 61 sqm provides additional volume, adaptable for storage or ancillary functions.
Beyond the immediate urban setting, woodland paths and river swimming areas can be reached within around ten minutes on foot, extending the living environment into the surrounding landscape.
The property is in need of modernisation, offering a clear opportunity to reinterpret the existing structure while retaining its material identity.
A space defined by proportion, material and position - between town life and landscape.
Fivizzano, Lunigiana, Tuscany, Italy
NEAREST AIRPORTS
Distances are straight line measurements- Galileo(International)40.9 miles
- Florence(International)60.8 miles
- Borgo Panigale(International)60.9 miles
- Cristoforo Colombo(International)64.2 miles
- Villafranca Veronese(International)88.0 miles
Advice on buying Italian property
Learn everything you need to know to successfully find and buy a property in Italy.
Notes
This is a property advertisement provided and maintained by Pianta Immobiliare di Naomi Smith, Fivizzano (reference Caterina) and does not constitute property particulars. Whilst we require advertisers to act with best practice and provide accurate information, we can only publish advertisements in good faith and have not verified any claims or statements or inspected any of the properties, locations or opportunities promoted. Rightmove does not own or control and is not responsible for the properties, opportunities, website content, products or services provided or promoted by third parties and makes no warranties or representations as to the accuracy, completeness, legality, performance or suitability of any of the foregoing. We therefore accept no liability arising from any reliance made by any reader or person to whom this information is made available to. You must perform your own research and seek independent professional advice before making any decision to purchase or invest in overseas property.



