Whitfield Mill, Apperley Bridge, West Yorkshire, BD10 0LP

Letting details
- Let available date:
- 03/12/2025
- Deposit:
- Ask agentA deposit provides security for a landlord against damage, or unpaid rent by a tenant.Read more about deposit in our glossary page.
- Min. Tenancy:
- Ask agent How long the landlord offers to let the property for.Read more about tenancy length in our glossary page.
- Let type:
- Long term
- Furnish type:
- Unfurnished
- Council Tax:
- Ask agent
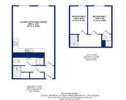
- PROPERTY TYPE
Duplex
- BEDROOMS
2
- BATHROOMS
2
- SIZE
850 sq ft
79 sq m
Key features
- VIDEO TOUR ON ADVERT
- AVAILABLE 3RD DECEMBER
- Unfurnished DUPLEX Apartment
- Two bedrooms, two bathrooms
- Bright & Spacious rooms. Open plan living kitchen
- Allocated parking space
- Sought-after development with lift
- Concierge
- Close to Apperley Bridge train station
- Zero deposit available via Reposit
Description
Superb converted Two Bedroom Duplex Penthouse Apartment located within this ever popular, sought-after area of Apperley Bridge and forming part of the old mill. This excellently presented property is situated on the first floor and has the added advantage of an onsite concierge and lift service.
The accommodation comprises a good-sized open plan kitchen, with integrated appliances, and lounge boasting huge windows, complementing the apartment's bright and spacious feel. Two double bedrooms, one complete with an en-suite shower room, a large entrance hallway with good storage facilities, a further shower room and an allocated parking.
The development also benefits from its own concierge service. The apartment itself is ideal for those looking for a modern lifestyle with character in a popular location, close to Apperley Bridge's train station, cafes, restaurants, marina, canal and river strolls.
Full sized fridge freezer. Full sized dishwasher. Washer and dryer. Soft close kitchen suite.
Property is UNFURNISHED.
Zero deposit available via Reposit.
This apartment is always extremely popular so contact us today to avoid disappointment!
This property is fully managed by City Home, the multi-award winning UK property agent.
.
.
- COUNCIL TAXA payment made to your local authority in order to pay for local services like schools, libraries, and refuse collection. The amount you pay depends on the value of the property.Read more about council Tax in our glossary page.
- Ask agent
- PARKINGDetails of how and where vehicles can be parked, and any associated costs.Read more about parking in our glossary page.
- Yes
- GARDENA property has access to an outdoor space, which could be private or shared.
- Ask agent
- ACCESSIBILITYHow a property has been adapted to meet the needs of vulnerable or disabled individuals.Read more about accessibility in our glossary page.
- Ask agent
Energy performance certificate - ask agent
Whitfield Mill, Apperley Bridge, West Yorkshire, BD10 0LP
Add an important place to see how long it'd take to get there from our property listings.
__mins driving to your place
Notes
Staying secure when looking for property
Ensure you're up to date with our latest advice on how to avoid fraud or scams when looking for property online.
Visit our security centre to find out moreDisclaimer - Property reference 116WHIM. The information displayed about this property comprises a property advertisement. Rightmove.co.uk makes no warranty as to the accuracy or completeness of the advertisement or any linked or associated information, and Rightmove has no control over the content. This property advertisement does not constitute property particulars. The information is provided and maintained by City Home, Nationwide. Please contact the selling agent or developer directly to obtain any information which may be available under the terms of The Energy Performance of Buildings (Certificates and Inspections) (England and Wales) Regulations 2007 or the Home Report if in relation to a residential property in Scotland.
*This is the average speed from the provider with the fastest broadband package available at this postcode. The average speed displayed is based on the download speeds of at least 50% of customers at peak time (8pm to 10pm). Fibre/cable services at the postcode are subject to availability and may differ between properties within a postcode. Speeds can be affected by a range of technical and environmental factors. The speed at the property may be lower than that listed above. You can check the estimated speed and confirm availability to a property prior to purchasing on the broadband provider's website. Providers may increase charges. The information is provided and maintained by Decision Technologies Limited. **This is indicative only and based on a 2-person household with multiple devices and simultaneous usage. Broadband performance is affected by multiple factors including number of occupants and devices, simultaneous usage, router range etc. For more information speak to your broadband provider.
Map data ©OpenStreetMap contributors.





