Houses For Sale in Horley Row, Horley, Surrey
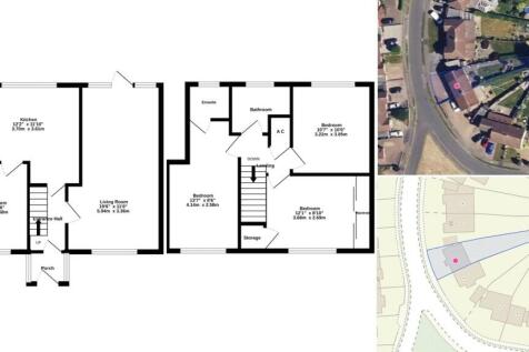
Guide Price £500,000 - £540,000. A spacious three double bedroom semi-detached family home in the sought-after Meath Green area, close to local shops, schools and countryside walks. Offering generous living space, a large garden and driveway parking for 3–4 vehicles.
This attractive detached family home is located in a quiet cul-de-sac. Offered to the market with NO FORWARD CHAIN, the property features an elegant living room, spacious kitchen/diner, three good sized bedrooms, contemporary bathroom, front and rear gardens, garage and parking.
Guide Price £400,000 - £440,000. A three-bedroom semi-detached family home in the popular Landen Park area of Horley, close to Meath Green schools, shops and countryside walks. Offered with no onward chain and featuring a 29ft garage, driveway and rear garden.
This well-presented home is offered to the market with a complete chain, making for a smooth and straightforward purchase. Ideally located close to parks, schools, and excellent transport links, it's perfectly suited to families and commuters alike. The property features a bright open-plan kitche...
Guide price for a Home for Life Lifetime Lease for OVER 60s tailored to your personal circumstances and requirements. Your price may vary. OVER 60s could benefit from SAVINGS of up to 59% from the market value with a one-off payment for a Lifetime Lease on this property. £396,000 GUIDE PRIC...
Situated within easy reach of Horley town centre, highly regarded local schools, parks, and convenient bus routes, the location is ideal for modern living. Horley train station offers fast, direct services to London, Gatwick and the South Coast, while the M23/M25 road network is also close by mak...
OPEN HOUSE THIS SATURDAY (7TH FEB) - by appointment only. This two-double-bedroom terraced property is the perfect opportunity for first-time buyers looking for a seamless move, as it is offered with no upward chain. The property strikes a rare balance between convenience and tranquility, boastin...
Buyers Fees apply - see brochure for details. Cash buyers only - Discover this wonderful home, offered with no onward chain for a smooth move! Enjoy generous outdoor space with its great-sized front and rear gardens, providing ample room for relaxation, play, or entertaining. The heart of the hom...
Guide price for a Home for Life Lifetime Lease for OVER 60s tailored to your personal circumstances and requirements. Your price may vary. OVER 60s could benefit from SAVINGS of up to 59% from the market value with a one-off payment for a Lifetime Lease on this property. £347,000 GUIDE PRIC...
Guide price for a Home for Life Lifetime Lease for OVER 60s tailored to your personal circumstances and requirements. Your price may vary. OVER 60s could benefit from SAVINGS of up to 59% from the market value with a one-off payment for a Lifetime Lease on this property. £231,500 GUIDE PRIC...
25% Share of £400,000 OPEN HOUSE by appointment only - Saturday 31st January. A modern and well-presented two-bedroom home in the popular Westvale Park development, featuring two large double bedrooms, a spacious living area, contemporary kitchen, downstairs WC, rear garden and allocated parking.























