Properties For Sale in North East, England
A beautifully presented three-bedroom family home with the added benefit of an additional loft room, offering versatile and spacious accommodation ideal for modern family living. The property briefly comprises an entrance porch leading into an inviting hallway with stairs to the first fl...
Nestled along the prestigious Warden Law Lane, this exceptional four-bedroom detached family residence offers an impressive blend of elegance, comfort, and privacy. Set behind a traditional stone wall and a pair of ornate cast iron gates, the home is beautifully framed by a meticulously landscape...
RARE TO MARKET | LARGE EXECUTIVE DETACHED HOME | 1/3 ACRE PLOT Bellingham Court is an exclusive development of only 4 select, detached homes, served by a private road. This delightful oasis is well placed for excellent transport links and reputable schools. Pinegrove House is a ...
Holly House – Exceptional 3-Bedroom Detached Equestrian Home with Stables & Approx. 2 Acres of Land in the Idyllic Setting of Ramshaw Set within the breathtaking and tranquil surroundings of Ramshaw, Holly House presents a rare opportunity to acquire a beautifu...
Successful holiday let only minutes from Bamburgh, with stunning views over countryside and beach. This uniquely designed, newly constructed 3 bedroom luxury property has a modern design with open plan living and entertaining. Situated just a few miles from popular Bamburgh is this wonderfully...
A Stunning Coastal Home in the Heart of Cresswell Village. Nestled in the picturesque Northumberland coastal village of Cresswell, this beautifully presented and deceiving four-bedroom detached split level cottage blends traditional character with contemporary comfort. Spacious, thoughtfully r...
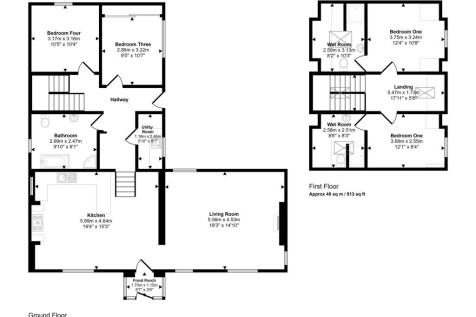
Straight from the pages of a country lifestyle magazine, this beautifully presented period home exudes the charm and elegance of a bygone age and offers period living at its most comfortable and stylish. Elegant neutral décor, high end quality fixtures and fittings and the use of natural s...
This outstanding 'Self-Build' property provides a rare purchase opportunity, and delivers approximately 2500sqft of floor space, within the superbly presented, expansive accommodation that is delivered to a fantastic standard throughout. Only upon internal inspection will the true qualit...
A substantial and highly appealing four-bedroom detached home positioned in a peaceful village setting with stunning outlooks across open countryside and the River Tyne with a mature garden all set within the heart of the desirable village of Ovingham
An impressive, five bedroom stone built detached house, on the western edge of North Sunderland, with fantastic open aspect views over the surrounding fields and countryside towards the Cheviots - the excellent split level, family home was built in 1995, as a bespoke design for the current owners...
Located in the highly sought-after village of Hurworth and enjoying views of the Green, this exceptional four-bedroom detached bungalow—designed and built by the current owner in 1979—occupies a generous, private corner plot offering an abundance of internal and external space. The property featu...
Manson's are delighted to bring to the sales market this charming stone-built residence set over two floors, quietly positioned to the rear of this peaceful former farm steading, which was thoughtfully converted into a select collection of attractive homes in the early 1980s. This delightful prop...
Bradley Hall is delighted to bring to the market this exceptional three-bedroom family home, complete with a spacious, self-contained one-bedroom annexe. Extending to over 1,970 sq.ft., this property offers an impressive combination of generous living space, high-quality finishes, and privacy.
CONSIDERABLE FOUR BEDROOM DETACHED FAMILY HOME OCCUPYING A SIZEABLE PLOT, POSITIONED UPON THE HIGHLY SOUGHT AFTER ESTATE OF BEAUMONT PARK Brannen and Partners are delighted to welcome to the market this ideal four bedroom detached family home, nestled perfectly within a quiet cul-de-sac ...
Discover Grange House – a distinguished four-bedroom stone-built residence nestled within the prestigious Woodlands Hall Estate near Knitsley, Consett, County Durham. This remarkable property occupies a generous plot, complete with paddock, double garage, and renewable energy features, offe...
Boasting a variety of opportunity the main residence offers accommodation across two floors with an integral and spacious business premises to the ground floor. There is fantastic scope for a buyer to combine the business element back into the family home or create an annex. The property extends ...
Arguably one of the finest examples of its type, this exceptionally well appointed 6 bed end-terrace house commands a much sought after and highly regarded position on the private road of Roker Park Terrace. Directly overlooking Roker Park and boasting convenient access to the sea front with its ...
For sale is a distinctive detached property with private, low maintenance grounds in Durham, originally a chapel and thoughtfully converted for modern living. Located in Croxdale, this impeccable five-bedroom home features an open-plan layout throughout its kitchen and double-height reception ...
Tucked away in the heart of County Durham, Bede Lodge on Redhills Lane is a rare and captivating property brimming with historical character and architectural charm. Situated near the city of Durham this unique home includes a stunning Grade II listed stone-built chapel that dates back to 1867. ...
Signature North East welcomes you to this delightful three-bedroom, semi-detached home located in the desirable area of Monkseaton. Offering a superb combination of traditional charm and modern comforts, this property boasts generous room sizes and many original features, including multiple firep...
Boasting approximately 2500sqft of impressive living space, and delivering four separate living spaces, this large, executive family home is built to the outstanding 'Wessex II' design by 'Charles Church' - amongst the largest styles available. The stunning lobby is a particular feature...
Embleys are delighted to be instructed in the sale of this characterful and rare to the market, semi detached house, built in 1941 and perfectly located in a much sought after residential area. It boasts a wealth of modern features with period charm and is ideal for a family. With over 1500 s...























