Properties For Sale by Orion Homes, including sold STC
5 results
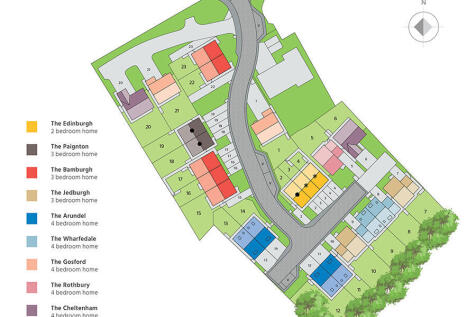
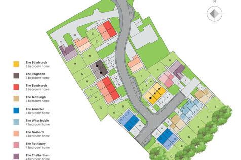
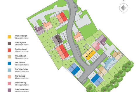
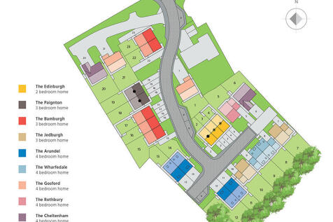
The Bamburgh is a stylish 3-bed mid terrace home in Birkenshaw, blending modern living with rural charm. Featuring a Bosch-fitted kitchen, spacious lounge, en-suite master, 2 further good sized bedrooms, turfed garden, EV charger, and 10-year warranty, it offers comfort, quality, and convenience.
Four-bedroom detached home with elegant PVCu sash windows, spacious kitchen-diner with Bosch appliances, separate sitting room, two en-suite shower rooms, utility room, single garage, electric car charging, private garden, USB points, gas heating, and a 10-year structural warranty.
Four-bedroom detached home with spacious kitchen-diner, premium Bosch appliances, utility room, separate sitting room, master en-suite, family bathroom, single garage with electric car charging, private garden, USB points, gas heating, and 10-year structural warranty.
The Bamburgh is a stylish 3-bed end terrace home in Birkenshaw, blending modern living with rural charm. Featuring a Bosch-fitted kitchen, spacious lounge, en-suite master, 2 further good sized bedrooms, turfed garden, EV charger, and 10-year warranty, it offers comfort, quality, and convenience.
The Bamburgh is a stylish 3-bed end terrace home in Birkenshaw, blending modern living with rural charm. Featuring a Bosch-fitted kitchen, spacious lounge, en-suite master, 2 further good sized bedrooms, turfed garden, EV charger, and 10-year warranty, it offers comfort, quality, and convenience.
The Bamburgh is a stylish 3-bed mid terrace home in Birkenshaw, blending modern living with rural charm. Featuring a Bosch-fitted kitchen, spacious lounge, en-suite master, 2 further good sized bedrooms, turfed garden, EV charger, and 10-year warranty, it offers comfort, quality, and convenience.
































































































































