4 results
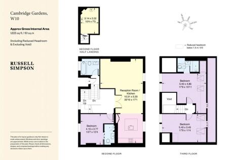
Stunning 3 bedroom, 3 bathroom upper maisonette located on one of North Kensington's best address. Flooded with natural light this flat spanning 1625sq ft occupies the whole of the second and third floors of this beautiful, detached Victorian Villa.
Bright and beautifully refurbished three-bedroom flat moments away from the Golborne Road
Arranged over the second and third floor of this period villa, the flat has excellent entertaining space, with a wonderful double height ceiling, leading onto the large kitchen. There are three spacious bedrooms with two bath/shower rooms.
Located within an attractive period terrace in an enviable North Kensington location, this stylish 2 bedroom Duplex flat offers bright living space throughout.
Staying secure when looking for a property
Ensure you're up to date with our latest advice on how to avoid fraud or scams when looking for property online.
Map data ©️OpenStreetMap contributors.
Copyright © 2000-2025 Rightmove Group Limited. All rights reserved. Rightmove prohibits the scraping of its content. You can find further details here.