Properties For Sale in DN2 5BQ
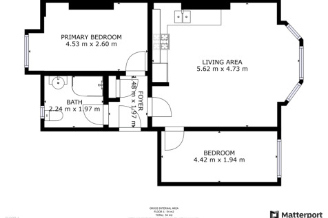
3D Virtual Tour Available- Take a closer, more detailed look around via our 3D Virtual Tour! Don't forget that you can also check availability for viewings online via a visit to our website... A modern, well-presented 2 bedroom flat with no chain situated in the convenient location of Don...
This bespoke traditional style six bedroom semi-detached home benefits from four reception rooms, spacious bedrooms, an en-suite bathroom and a superb range of off road parking. With close links to a range of local amenities and schools and is ideal for a growing or extended family.
3D Virtual Tour Available- Take a closer, more detailed look around via our 3D Virtual Tour! Don't forget that you can also check availability for viewings online via a visit to our website... A modern, well-presented 2 bedroom flat with no chain situated in the convenient location of Don...




































