Properties For Sale in B75 5RF
A stunning detached family home on the edge of open countryside whilst being within easy reach of the amenities at Mere Green. Offering spacious and modern accommodation, 'Tregarth', Weeford Road benefits from having underfloor heating throughout the ground floor, a contemporary open plan kitchen...
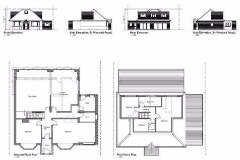
Raconor, Weeford Road, Sutton Coldfield offers a rare opportunity to acquire a bungalow with planning under permitted development rights for a two storey dwelling of approximately 1700 square feet, Planning Document 2022/08305/PA, and substantial single storey outbuilding extending to an overall ...
This characterful and delightful detached cottage enjoys an enviable position overlooking open fields and has been thoughtfully renovated to a high standard. The home boasts a stunning open-plan kitchen/diner and living space with a utility, perfectly designed for modern family life, alongside a ...