to
to
Area
Price
-
Bedrooms
-
Bathrooms
-
Property type
Property details
Tenure types
Must haves
Don’t show
Properties For Sale in IP6 9PR
Prioritise properties with...
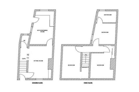
School Road, Coddenham, Ipswich, Suffolk, IP6
Terraced
3
1
We are pleased to offer for sale this MOST ATTRACTIVE, DECEPTIVELY SPACIOUS, THREE BEDROOM PERIOD VILLAGE HOUSE, presented in superb condition throughout, ready for immediate occupation. With appealing garden and views over meadowland to the rear. Offered with no onward chain.
Page of 1

















