Properties For Sale in IP7 6BY
We are delighted to offer Cosford Cottage, which is located on the former Council Offices Development, Corks Lane, Hadleigh. This stunning three bedroom cottage offers modern living, whilst still retaining the charm and character. A unique opportunity to acquire this lovely cottage.
Plot 42 Three Bedroom ground floor apartment offers open plan Kitchen/Dining/Lounge, with three generous sized bedrooms. Just sitting under 1,000 square feet this apartment is ideal for entertaining. Sitting within a stunning development of 49 homes, *NOW OPEN BY APPOINTMENT ONLY. *
Plot 44 Samford Court - This one bedroom apartment would be ideal as a buy to let investment, or a great second home to lock up and leave. Offering a master bedroom, along with Kitchen and separate Lounge/Diner, and bathroom. Call Now To Book Your Appointment !
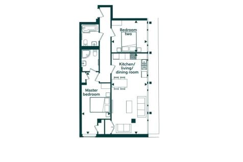
Plot 40 Samford Court - This one bedroom apartment would be ideal as a buy to let investment, or a great second home to lock up and leave. Offering a spacious master bedroom, along with Kitchen/Dining/Living room, and a good sized main bathroom. Call Now To Book Your Appointment !





















































































