to
to
Properties For Sale in RG4 8HL
Prioritise properties with...
FEATURED PROPERTY
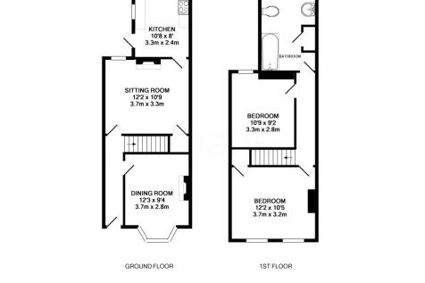
Westfield Road, Caversham, Reading
House
2
1
**ANOTHER ROMANS SALE AGREED PRIOR TO MARKETING IN CAVERSHAM** Situated in the desired area of central Caversham, this attractive two-bedroom home offers well-balanced accommodation, a private garden and the rare advantage of a double garage providing secure parking, positioned o...
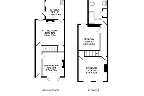
Westfield Road, Caversham, Reading
House
2
1
**ANOTHER ROMANS SALE AGREED PRIOR TO MARKETING IN CAVERSHAM** Situated in the desired area of central Caversham, this attractive two-bedroom home offers well-balanced accommodation, a private garden and the rare advantage of a double garage providing secure parking, positioned o...
Page of 1


