Properties For Sale in Ivy Hatch, Sevenoaks, Kent
A beautifully appointed family home with excellent gardens amounting to just over an acre, located within a Conservation area on the edge of Ivy Hatch close to Ightham Mote. Sandy Cottage is approached over a gated driveway with a detached triple bay garage providing ample off road parking. The...
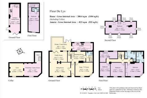
Offered with no onward chain, this handsome detached five bedroom home of over 3600 sqft in Ivy Hatch has a converted loft, extensive cellar and a one bedroom self contained converted Bakehouse. Formally the shop, post office and bakery, Fleur de Lys has been renovated sympathetically by the cur...
Guide price - 850,000 - 900,000. Nestled within the historic walled kitchen gardens of Ivy Hatch Court, this unique property presents an exceptional opportunity to create a bespoke residence. Set on a generous plot, this site offers substantial space for parking and exciting scope for extension o...


















































