Properties For Sale by Berrys, Kettering, including sold STC
25 results
A superb six-bedroom, three-storey, stone built family home, sitting in a quiet cul-de-sac in the ever popular village of Weldon. Impressive accommodation includes a formal sitting room with stone fireplace, superb family room with sliding doors to the landscaped garden, a lovely fitted kitc...
Sitting on the A14, accessed via electric double gates, stands this three-storey, five-bedroom Georgian ex-farmhouse which benefits from an office suite which is currently rented out, with its own off-road parking and gated access. Further benefits include a two section workshop, paddock ar...
A superb six-bedroom, three-storey, stone built family home, sitting in a quiet cul-de-sac in the ever popular village of Weldon. Impressive accommodation includes a formal sitting room with stone fireplace, superb family room with sliding doors to the landscaped garden, a lovely fitted kitc...
The property comprises a single arable field extending to approximately 19.02 hectares (47 acres). This is a level field with a soil type described as falling within the Banbury Series which is commonly found in this part of Northamptonshire, being a limestone loam.
Offered to the market in a sought after location in Thrapston, with full planning permission, is this 1 acre site. The proposed properties, will range between approx. 1,958 sq ft to 2,420 sq ft. and are arranged around a centre turning circle, with all properties having rear gardens and views ove...
Situated within easy reach of the A43 and only 3 miles from the A14 and Kettering, sits this 18 acre horticultural and recreational site with living accommodation. The site has a number of covered tunnels, barns and storage units, along with a wooded area with stream and feature ponds.
A deceptively spacious three / four bedroom family home with two bathrooms, filled with character, situated in the very sought after village of Cranford St John. Offered to the market with No Onward Chain, built in stone and offering versatile accommodation throughout. Features of this ...
Snowball Farm Barns are approached via a shared private access road leading south to the traditional stone and brick single storey farm buildings. Once converted to residential use, these barns will enjoy views over open countryside to the south, east and west.
This Grade II listed stone and brick built premises comprises a number of offices and storage rooms on both ground and first floors with a meeting room, staff facilities and front and rear gardens with two car parks to form part of this 0.42 acre plot. Suitable for offices, alternativ...
"The Cottage" is a detached four bedroom Grade II listed property of stone construction under a thatched and slate roof. The accommodation extends to approximately 1792sq ft (166sq m) and is arranged over two storeys. The property sits on a 0.18 acre plot and benefits from a south facin...
Nestled at the end of a very popular cul-de-sac in Kettering is this detached family home offering versatile accommodation. With off road parking for several vehicles and a TANDEM LENGTH GARAGE, this home also benefits from a secluded rear garden, main bedroom with en-suite, separate reception ro...
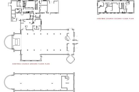
This 0.68 acre site sits alongside Millais, Morland and Gainsborough Road in Corby and is adjacent to a Lidl Supermarket. The site provides a two storey place of worship with an attached Presbytery which has 4-5 bedrooms upstairs and reception rooms to the ground floor.
• A rare opportunity to acquire either a single building plot, or a pair of building plots. • 0.4 acres located in an enviable position on the edge of the well serviced village of Silverstone. • Planning Permission has been granted for 1-2 self /custom-build dwellings un...
A delightful and thoughtfully extended four bedroom family home set over three floors, benefitting from three reception areas, a gorgeous, fitted kitchen breakfast room and a low maintenance rear garden which offers a good degree of privacy. Overall accommodation includes an entrance hallwa...
The Granary comprises a two storey enclosed limestone former agricultural building with an open fronted single storey building set at an angle. Full Planning Approval was granted 22nd July 2025 for the conversion of the building to a residential dwelling, extending to 223.6m2 (2,406ft2).
The Granary is situated in the hamlet of Grimscote. Built in the 1700s, the Granary is a two storey ironstone barn featuring a pair of red brick archways to the rear. The barn was originally used to house cattle. Full Planning Approval was granted on 22nd July 2025 for the conversion of the build...
The property extends to approximately 31.11 acres of versatile land, currently in arable production. The land comprises of a good-sized field with mature hedgerow boundaries. The land is bound by agricultural land, including the High Street directly to the south.
The property is now offered for sale via Informal Tender. The best and final Informal Tender offer deadline is at 12:00 noon on Wednesday 8 October 2025 The property is a single traditional steel portal framed barn that benefits from planning permission under application reference num...
Dating back to circa 1784, this Grade II listed church has sat proudly in the middle of Kilsby community. A further brick and tile roof extension was added circa 1800. The brick built extension has previously been run as a cafe (up to December 2024). There are front and rear gardens, with the bac...
An internal viewing is a must to fully appreciate this immaculately presented and extended three-bedroom semi-detached home offering off road parking for several vehicles. Benefits include oak fitted doors, oak and metal balustrades to the stairs, an attractive and extended refitted kitchen, refi...
A stone built cottage with thatched roof, dating back to circa 1660. Situated in the heart of the market town of Rothwell. Deceptive accommodation comprises a communal entrance hall, then the living spaces offers two reception rooms and a fitted kitchen, there is a disused cellar which is accesse...
Offered to the market with No Onward Chain, is this two-bedroom semi-detached property sitting in a sought-after village location. The property offers off-road parking to the front and has been previously extended to the rear to form an extended kitchen dining room area.














































































































































































