Properties For Sale by Blundells, Doncaster, including sold STC
137 results
Located within a modern and well-regarded development in Adwick-le-Street, Doncaster, this impressive four-bedroom detached house offers flexible and stylish living across three generous floors. With a contemporary interior and well-planned layout, it’s an ideal home for growing families or...
This appealing village is located in a corner of North Yorkshire where the county meets its South Yorkshire neighbour and offers a stunning five bedroom, character family home with a contemporary specification. Womersley has a Grade I listed church and a range of local amenities can be...
Guide Price £800,000 - £850,000 - Situated within the heart of Doncaster is this unique and outstanding one off property which only can be appreciated with an internal inspection to truly understand the beauty and character of this family home which stretches over four floors and is s...
Hickleton Hall - North Wing A rare opportunity to acquire the grade II* listed North Wing of this historic hall with planning permission granted (20/30464/FUL) for conversion to create five stunning homes. The North Wing is attached to the main hall and sits within the grounds alo...
Situated in the quiet, semi-rural village of Thorpe in Balne, to the north of Doncaster, this individually designed three-bedroom detached family home offers a unique opportunity to acquire a spacious and versatile property set against a backdrop of stunning rural views. Thoughtfully constructed ...
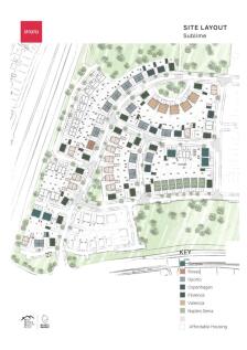
The Valencia - A breath taking home that has it all. 1986 sq ft, large open plan kitchen/family area with breakfast bar & separate utility, spacious lounge, stunning master bedroom with balcony, spacious bedrooms, two ensuites and a family bathroom. Private double driveway & integral gara...
Guide Price £475,000 - £500,000 - Blundells are delighted to offer this magnificent four bedroom Georgian end terrace town house to the market which has the balance of character and contemporary to perfection. This property must be viewed internally to appreciate the high q...
Guide Price £450,000-£475,000 Situated on a popular residential estate in the popular suburb of Arksey is this spacious, unique detached bungalow which is available with no chain and is an ideal family home. An internal inspection is strongly recommended to app...
GUIDE PRICE £425,000 TO £450,000 Stunning 4-Bedroom Detached Family Home – Stoops Lane, Bessacarr, Doncaster Nestled in the highly desirable area of Bessacarr, this beautiful four-bedroom detached home on Stoops Lane offers spacious, modern living ideal for...
The Naples - a perfect family home that is a must see. 2109 sq ft, open plan kitchen/diner with French doors leading out to the garden, breakfast bar & separate utility, 22 foot lounge + a study/playroom. The Naples has it all. Private parking & integral garage. SHOW HOMES NOW ...
SHOW HOMES NOW OPEN AT SUBLIME! BOOK A VIEWING TODAY! The Siena - 2296 sq ft of luxury. Large kitchen with island, spacious lounge, master bedroom with ensuite and recessed dressing area, four further double bedrooms. Private double driveway space & detached garage. The ...
Stunning Four Bedroom Detached Home in the Heart of Armthorpe Welcome to this beautifully presented four-bedroom detached family home, perfectly situated in the sought-after village of Armthorpe. Offering generous living space, modern interiors, and excellent local amenities, this prop...
Guide price £375,000-£400,000 Located in the popular suburb of Sprotbrough is this spacious and well presented, extended four/five bedroom detached property which is the perfect family home and provides ample living space both internally and externally. This fam...
The perfect family home. 1773 sq ft, large open plan kitchen with breakfast bar, separate utility and French doors leading to a private garden. Master bedroom with ensuite + four more spacious bedrooms. Private parking & detached garage. The Florence is a beautiful, contemporary fi...
NO CHAIN! Don't miss this rare opportunity to acquire such a beautiful character property with easy access to Doncaster Royal Infirmary Hospital, Lakeside, Townfields and Doncaster Racecourse. Situated close to the Thorne Road conservation area is this Grand Victorian deta...
Guide Price £360,000 - £380,000 - Located on a spacious plot on this popular residential estate overlooking the park is this well presented five bedroom executive family home which provides ample living space internally and externally to be the perfect family home with no onward chain...
Guide Price £350,000-£375,000 - Located in a quiet and highly desirable cul-de-sac within the sought-after area of Bessacarr, this immaculately presented and extended four-bedroom detached residence offers spacious and versatile accommodation, ideal for modern family living.
SHOW HOMES NOW OPEN AT SUBLIME! BOOK A VIEWING TODAY! A versatile home that has it all, 1350 sq ft, large open plan kitchen/diner with family area & separate utility. Light filled lounge & spacious bedrooms with an ensuite and family bathroom. Private parking & detached gar...
RDY2GO PACKAGE WORTH OVER £19k – PLOT 132 - Luxury flooring throughout, Contemporary kitchen with integrated appliances, Boutique bathroom with spa-inspired tiles, Built in wardrobes in master bedroom The Florence - The perfect family home. 1743 sq ft, large open plan kitch...
Guide Price £350,000-£375,000 - Stunning Four-Bedroom Detached Family Home – Presented to a High Specification Situated in the sought-after area of Adwick-le-Street, this beautifully presented four-bedroom detached property offers the perfect blend of contemporary liv...
1350 sq ft four bedroom detached home. Open plan kitchen, dining and snug with utility. Separate lounge. Four spacious bedrooms, master with ensuite. The Copenhagen - A versatile home that has it all. 1350 sq ft, large open plan kitchen/diner with family area & separate utility. L...
Welcome to this impressive three-bedroom detached property located on the popular Norborough Road in Doncaster. Offering generous living space, modern comfort, and fantastic outdoor features, this home is perfect for families looking for a property that truly has it all. The ground flo...
Set within the highly sought-after Lakeside development in Doncaster, this impressive six-bedroom detached property offers generous living space, modern comforts and a superb family-friendly layout. Ideally positioned for lakeside walks, retail amenities and excellent transport links, it’s ...
Situated on this beautiful suburban road close to town and Doncaster Royal Infirmary Hospital is this spacious, large period style six bedroom semi-detached property offering ample living space both internally and externally. The property has been completely transformed by the current ...
Guide Price £320,000-£330,000- Ex-show home! Spacious 4 Bedroom Detached House in Hatfield, Doncaster. This stunning four-bedroom detached home, formerly the show home, offers a perfect blend of style, comfort, and practicality in the sought-after village of Hatfield, Donca...










































































































































































































































































































































































































































































