Properties For Sale by Cooper & Tanner, Castle Cary, including sold STC
28 results
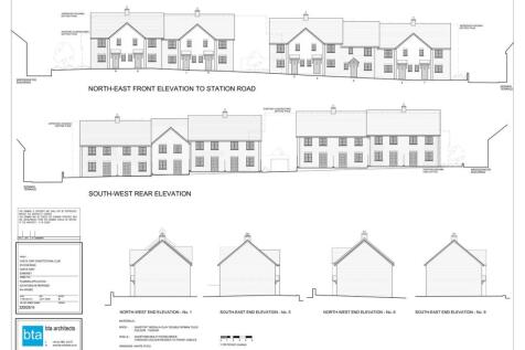
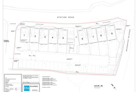
We are proud to announce a new-build development in what used to be the Constitutional Club in Castle Cary. The site is being marketed off plan, with completion for the build estimated to be early autumn 2025. The site will feature nine, three bedroom properties all with rear gardens, all...
We are proud to announce a new-build development in what used to be the Constitutional Club in Castle Cary. The site is being marketed off plan, with completion for the build estimated to be early autumn 2025. The site will feature nine, three bedroom properties all with rear gardens, allocate...
We are proud to announce a stunning new-build development in what used to be the Constitutional Club in Castle Cary. The site is being marketed off plan, with completion for the build estimated to be early autumn 2025. The site will feature nine, three bedroom properties all with rear gardens,...
We are proud to announce a new-build development in what used to be the Constitutional Club in Castle Cary. The site is being marketed off plan, with completion for the build estimated to be early autumn 2025. The site will feature nine, three bedroom properties all with rear gardens, allocate...
An attractive semi-detached cottage, built of Cary stone, tucked away within one of the town's most sought-after roads, a stone's throw from the town centre amenities. Requiring a scheme of modernisation, the property includes two double bedrooms, two reception rooms and a generous g...
A delightful two bedroom cottage on this popular street in the sought after market town of Castle Cary. With a sweet little garden, log burner and proximity to the centre of town this property is ideal for first time buyers, investors or those looking to downsize. Offered with no onward chain....