Properties For Sale by Knight Frank, Ludlow, including sold STC
17 results
An exquisitely presented 17th century period home. Situated in the heart of the rolling and wooded landscapes of north Worcestershire. A home of warmth, heritage and detail. Approached via a private drive from the village, Owletts is discreetly tucked within its grounds, offering privacy and tra...
A beautifully restored period home close to Ludlow set in approx. 7.94 acres on the edge of Mortimer Forest Overton Lodge The main house, dating from the late Georgian/early Regency period, has been carefully and lovingly renovated by the current owner over the past five years, following over si...
A stunning Grade II* listed residence set in 37 acres of gardens and parkland, available for the first time in over 50 years. An exceptional Grade II* listed period home that has been in the same ownership for over fifty years. A much-loved family home that has been well maintained and is full o...
A tremendous opportunity to create a magnificent family home set in 64 acres of the most idyllic grounds and parkland. Wood Farm is an exciting opportunity to create a truly remarkable family home. The property has approved planning to extend in to a five-bedroom family home. The property sits i...
An attractive period farmhouse set in a fantastic location with excellent equestrian facilities set in 7 acres of land with a further 18.32 acres available to purchase or rent by separate negotiation. This attractive stone-built period farm house offers spacious accommodation across three floors...
An elegant Grade II listed Georgian townhouse with superb accommodation and beautiful walled garden situated on one of Ludlow’s most desirable streets. An elegant three-storey Georgian townhouse with rendered front elevation, period features throughout including fireplaces, sash windows and expo...
An outstanding Arts and Crafts house set on the edge of Carding Mill Valley providing superb accommodation and run as a successful tourism business. Arden House Built in the Arts and Craft style by the Former Mayor of Shrewsbury in 1903, Arden House sits in an elevated position within a plot e...
An exceptional town house with remarkable garden in the heart of Ludlow. 11 Corve Street provides a wonderful array of accommodation of exceptional proportions that is beautifully appointed. It is a fine example of a true Georgian property with a wealth of character and period features througho...
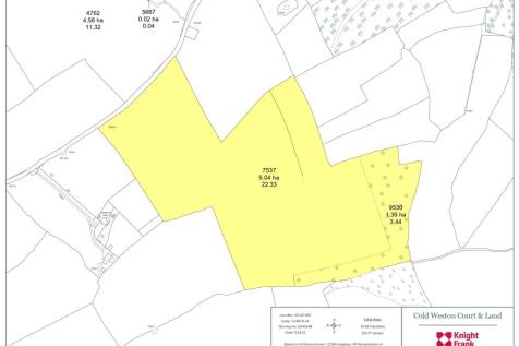
For Sale by Informal Tender As whole of a combination of four lots Tenders to be received by 12 Noon on Thursday 4th September 2025. An opportunity arises to purchase either as a whole, individually, or a combination of lots, good agricultural land extending to 108.5 acres (43.93 hectares) or th...
An attractive townhouse with well-proportioned accommodation arranged over three floors situated in the heart of Ludlow. A grade II listed home set in the conservation area, this characterful property features well-proportioned accommodation arranged over three floors with the added benefit of a...
A charming Grade II listed 17th century farmhouse with a large garden set on the outskirts of historic Ludlow. A Grade II listed 17th century farmhouse believed to be one of the first brick built houses in the area. It has been beautifully renovated, maintained and improved by the current owners...
For Sale by Informal Tender Tenders to be received by 12 Noon on Thursday 4th September 2025. An opportunity arises to purchase either as a whole, individually, or a combination of lots, good agricultural land extending to 108.5 acres (43.93 hectares) or thereabouts. In addition to agriculture t...
A semi-detached house with gardens backing onto farmland and superb views A comfortable semi-detached house that provides good accommodation with a large reception room, fitted kitchen, utility and WC on the ground floor. Up stairs are two large double bedrooms and a generous single room with a ...
For Sale by Informal Tender Tenders to be received by 12 Noon on Thursday 4th September 2025. An opportunity arises to purchase either as a whole, individually, or a combination of lots, good agricultural land extending to 108.5 acres (43.93 hectares) or thereabouts. In addition to agriculture t...
For Sale by Informal Tender Tenders to be received by 12 Noon on Thursday 4th September 2025. An opportunity arises to purchase either as a whole, individually, or a combination of lots, good agricultural land extending to 108.5 acres (43.93 hectares) or thereabouts. In addition to agriculture t...
Building plot with detailed planning permission within 5 minute walking distance of Ludlow railway station and supermarkets. Approved planning for detached house of 200.65 sq mtr (2159 sq ft) gross internal area (GIA), including garaging set on a plot of approx. 0.3 acres. Services connected to...
For Sale by Informal Tender Tenders to be received by 12 Noon on Thursday 4th September 2025. An opportunity arises to purchase either as a whole, individually, or a combination of lots, good agricultural land extending to 108.5 acres (43.93 hectares) or thereabouts. In addition to agriculture t...





















































































