Properties For Sale by Knight Frank, Sevenoaks, including sold STC
78 results
A three bedroom property located in a popular close in the sought after village of St Mary's Platt - offered with no onward chain. Paddock Close is a quiet cul de sac found just out of the village centre offering convenient access to local amenities. It’s just a short walk to the village pub, ch...
Imposing and beautifully presented family home set in secluded grounds of about 2.4 acres, within 3.4 miles of the mainline station. Tanyard Place is an imposing and substantial home set in secluded grounds of about 2.4 acres. The beautifully presented accommodation provides versatile living for...
An impressive family house located in the heart of the Wildernesse Estate. Westcombe House is an attractive family home occupying a delightful position in the heart of the prestigious Wildernesse Estate. Originally built in the 1920s the property has since been extended and modernised and is bea...
The Oaks is a fantastic five bedroom home offering over 7,700 sqft of luxury living with open-plan interiors, cinema, gym, spa pool, and beautifully landscaped gardens, set within 1.3 acres. The Oaks is a substantial and immaculately appointed family home that offers over 7,700 sqft of stylish, ...
A rare opportunity on one of Sevenoaks' most desirable roads. This beautifully presented, substantial and imposing family home offers a rare chance to own a modern yet characterful property in the heart of Sevenoaks Town. Set within a peaceful location on a third-of-an-acre plot, the property li...
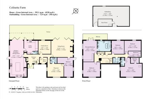
Exciting commercial and lifestyle opportunity including detached farmhouse, stables, sand school, established boarding kennels and storage business, plannning for 6 glamping tents, all set in 55 acres Colinette Farmhouse is a generously proportioned family home in an elevated setting with far-re...
Introducing Littleshaw - a rare opportunity to own one of Woldingham’s most iconic homes. Offered with no onward chain, it boasts breathtaking panoramic views across the rolling Surrey countryside. Built at the turn of the 20th Century by the celebrated architect Leonard Stokes as his private fa...
An attractive family property located on this sought-after private road in Sevenoaks. This beautifully presented family home offers a rare chance to own a modern yet characterful property on the popular south side of Sevenoaks. Located within a community popular with both families and London com...
A rare opportunity to build a bespoke home on one of the largest plots in Woldingham covering in excess of an acre and with planning permission (2025/472) in place for over 6000ft2 of living space. Located in the heart of Woldingham and benefitting from access from both Park View Road and Statio...
An exceptional family residence in a prime central location. Set in an elevated position just off from South Park, Bampton House is a magnificent detached home offering over 4,100 sq.ft of beautifully appointed accommodation. Just a short stroll from Sevenoaks High Street and within easy reach o...
A fantastic well established six bedroom family home, located on one of the most prestigious roads in Oxted, Surrey. The property is a striking early 1900s Art Deco home, offering six bedrooms and three bathrooms across three floors. Carefully maintained and updated over the past decade and reta...
An exceptional Grade II listed 15th century residence with latter additions, formerly the summer home of the Archbishop of Canterbury and part of the Addington Palace estate. Nestled away on secluded grounds approaching 1.3 acres in the Addington Village Conservation Area, this phenomenal seven ...
A spacious family home with delightful gardens in the exclusive Wildernesse Estate, in a prime Sevenoaks location. Beechwood is set back from Wildernesse Avenue in a lovely private position, being surrounded by its own gardens and grounds. The house is believed to date from the late 1920s with B...
An impressive character property situated in the exclusive Wildernesse Estate. Red Court is a wonderful family home located on the prestigious Wildernesse Estate set within glorious established gardens with tennis court extending to almost 1.5 acres. This detached family home has been in the sa...
An impressive detached property for sale in central Sevenoaks. A substantial detached property situated in a convenient central Sevenoaks location 0.2 miles from the main line station and within close proximity of the town centre and many well-regarded schools. Externally the property sits on a ...
An exceptional farm complex boasting a stylish four-bedroom house alongside a diverse range of farm buildings, all situated within 6 acres of land and enjoying beautiful countryside views. Tucked away along a quiet private country lane, Chartfield Farm is a charming and historic farmstead, origi...
A beautifully presented 17th Century Grade II country estate with Georgian additions set in far reaching gardens and excellent equestrian facilities. Originally dating from the 17th Century and benefiting from a Georgian addition on the south side of the building this elegant country estate is...
A beautifully located and designed family home set in approximately 9 acres and within easy reach of nearby Sevenoaks. Surrounded by the Kent countryside yet within 1.2 miles of a mainline train station to London Bridge, this architecturally designed modern family home (built in 2009) provides a...
An impressive family home on a quiet private road on the south side of Sevenoaks. Holmoak is located on an exclusive private road on the southern side of Sevenoaks within walking distance of Sevenoaks high-street and the mainline train station. At almost 4,500 sq ft this beautifully appointed fa...
An impressive family house within close proximity to Sevenoaks station, high-street and schools. The Laurels is an impressive detached family house located on a popular private road within walking distance of Sevenoaks main line station and high-street. This wonderful property was completed in 2...
A substantial family house set in cultivated gardens and with an indoor swimming pool; ideally located within easy reach of local amenities, excellent schools and well-connected transport links Located just outside the village of Knockholt to the north of Sevenoaks and in the popular Rushmore Hi...
A substantial family home with superb gardens for sale in Sevenoaks. Seal Lodge is a substantial detached six bedroom family home situated on the Wildernesse Estate located in a convenient position for Knole Park, Sevenoaks high-street and main line station. Extending to approximately 5,000 sq f...
A detached 6 bedroom house for sale in Sevenoaks Greensleeves is an outstanding family property situated on the Wildernesse Estate and located in a convenient position for Knole Park, Sevenoaks High Street and main line station. The property is of impressive proportions arranged over three floo...
A stunning Grade II listed period town house, in the heart of Tonbridge town with a private and tranquil rear garden. The Red House Bordyke is a significant attached Grade II listed town house of 4983 sq.ft in magnificent and tranquil grounds of 0.46 acres with double garage and parking situated...
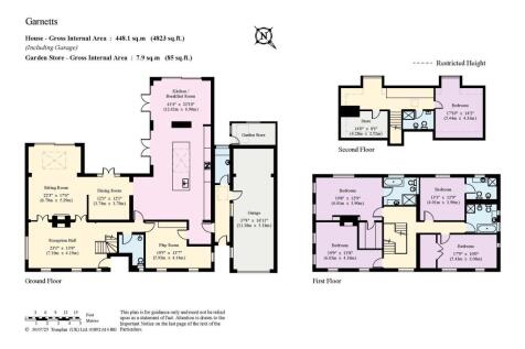
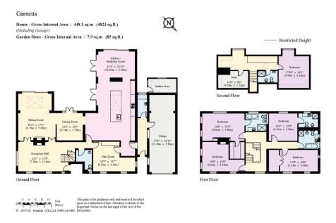
A chain free, Grade II Listed 15th-century 5 bedroom Medieval Hall House inc separate barn of 1877 sq ft with PP for ancillary accommodation, set within 1.85 acres of gardens within the Plaxtol Parish Approached via electrically operated gates over a gravel driveway, this Wealden Hall house i...























































































































































































