Properties For Sale by MOVE online, Leigh-On-Sea, including sold STC
9 results
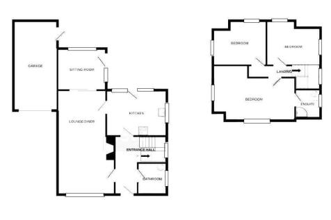
( JUST REDUCED ) Positioned in the heart of Westcliff -on-Sea, this beautifully presented three-bedroom home offers the ideal blend of space, style, and location, perfect for growing families or first-time buyers looking to settle in a well connected area. The ground floor boasts a bright a (cont.)
* SOLD NOW OFF MARKET * £560,000 - £575,000. An outstanding four double bedroom detached chalet offering spacious and versatile accommodation throughout. This beautifully presented home features two generous reception areas, a modern kitchen, a ground floor shower room, and a stylish bathroo (cont.)
* THREE BEDROOM DETACHED FAMILY HOME * NO ONWARD CHAIN * This bright and spacious detached family home boasts three double bedrooms and is beautifully presented throughout. The property features a large lounge/diner with a charming log burner, a cozy sitting room, a stunning fitted kitchen, (cont.)
** SOLD STC OFF MARKET ** Introducing this superbly refurbished semi-detached chalet in the sought-after location of Eastwood, Leigh on Sea. This stunning property boasts a welcoming entrance hallway, two bedrooms on the ground floor, complete with a separate W/C and storage cupboard, modern (cont.)
£340,000 - £360,000. MOVE ONLINE are favoured as sole agents to market this larger than average and very well presented THREE bedroom family home. This property features a welcoming entrance hallway, a generously sized front lounge that opens into a spacious open-plan kitchen and dining area (cont.)
( JUST REDUCED ) Positioned in the heart of Westcliff -on-Sea, this beautifully presented three-bedroom home offers the ideal blend of space, style, and location, perfect for growing families or first-time buyers looking to settle in a well connected area. The ground floor boasts a bright a (cont.)
MOVE online are thrilled to offer for sale, with no onward chain, this mid-terrace house located just off Shoebury High Street, close to shops, schools, and transport links. The accommodation includes a welcoming entrance hallway, a spacious lounge to front, a separate dining room, a generou (cont.)
* Modern Two Bedroom Semi-Detached Home in the Heart of Great Stambridge * MOVE online Estate Agents are pleased to bring to market this superb and modern two bedroom semi-detached house, ideally positioned in the sought-after village of Great Stambridge. Surrounded by picturesque S (cont.)
£290,000 - £310,000. MOVE ONLINE are favoured as sole agents to market this beautiful and very well presented two bedroom family home. Positioned on a surprisingly spacious plot, this property features a welcoming entrance hallway, a modern fitted kitchen to front, leading into a great size (cont.)
JUST REDUCED !! MOVE Online Estate Agents are pleased to offer for sale this two double bedroom top floor apartment, situated close to West Leigh School and the mainline train station. The property has a large lounge, modern fitted kitchen, modern fitted bathroom with a shower over the bath (cont.)





















