Properties To Rent in Easthampstead Park, Wokingham, Berkshire
*AVAILABLE IN SEPTEMBER* This stunning bungalow conveniently located in a peaceful residential area of the town. The property boasts a private front door, welcoming you into a spacious hallway that leads to a bright and airy living room. The living room is the perfect spac...
AVAILABLE MID NOVEMBER - UNFURNISHED This well presented semi-detached bungalow was redecorated throughout, with new carpets laid and a new bathroom under one year ago. Internally the accommodation comprises a kitchen which leads onto the garage and living room with slidin...
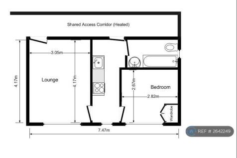
**No deposit option available to tenants, providing better cover for Landlords, please ask for details** A very well-presented second-floor two-bedroom apartment, ideally situated close to Wokingham train station and town centre. The property offers a modern kitchen with integrated appliances, an...
*Includes 1 month RENT FREE* This three-bedroom home from Leaf Living is pet friendly and includes superfast broadband. With double bedrooms, stylish kitchen & dining area, garden and private parking. Contact our team today & ask about our no deposit option.
TOWN CENTRE FOUR BEDROOM house with three bathrooms newly rebuilt kitchen/breakfast room, conservatory, living room and separate study. Sunny garden, driveway parking, plenty of storage. Short distance to station, shops and amenities. *** PETS CONSIDERED £50 PCM ***
Situated on but set back from the High Street this spacious and newly decorated first floor apartment is situated in central Crowthorne with all its amenities and shops. There are two double bedrooms, ensuite to bedroom one, bathroom and a spacious and light living room and kitchen. There is a...
*PETS CONSIDERED* This well presented two-bedroom annexe comes onto the market in a highly sought after location. Wokingham offers lovely restaurants, pubs and shops and the train station is just a five minute walk. The property has it's own private access, located behind a secured ...
Michael Hardy Lettings; Two bedroom ground floor apartment situated within walking distance of station and town centre. Open plan kitchen with appliances and tiled floor to living room. Master bedroom with ensuite shower room and built in wardrobe, family bathroom with shower over bath, second b...
Situated in the desirable St. Helier Close in Wokingham, this spacious four-bedroom detached house offers an exceptional living experience. With three well-appointed reception rooms, this property provides ample space for both relaxation and entertaining. The recently redecorated interiors create...
This exceptional Country home set in a rural corner of Finchampstead, seamlessly blending traditional character with contemporary amenities. The bright entrance hall grants access to three reception rooms, including a living room that extends to an outdoor entertaining area featuring a swimming ...























































