Properties To Rent in South East, England
This one double bedroom apartment is located within in easy reach of Surrey Research Par Room dimensions pending verification. It is not permitted for a tenant to register a company to the property or operate a business trade or profession from the property. All k...
AVAILABLE END FEB - PARKING AVAILABLE This well presented ground floor maisonette is located in a convenient location, overlooking the River Thames, within walking distance of Reading town centre. The accommodation comprises a living room, a separate fitted kitchen, two g...
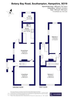
Stunning semi-detached house in Woolston Southampton boasting 2 bedrooms, 1 reception room, and 1 bathroom. This unfurnished property features a lovely garden and off-street parking, making it the perfect home for a small family or professionals. Don't miss out on this fantastic opportunity!
Two Bedroom, Two Bathroom first floor apartment in the new build development "Ashmere" opposite Bluewater Shopping Center in the latest part of Ebbsfleet Valley. Two double bedrooms, two bathrooms, open plan living room and kitchen with private balcony. Offered furnished and wit...
AVAILABLE MID MARCH!! Modern two bedroom flat forming part of an well run secure block in central Hove. The accommodation includes a splendid West facing main living room, one double bedroom and a further single bedroom, fully tiled bathroom, large fitted kitchen, security entry phone and lift ...
A spacious first floor TWO BEDROOM PART-FURNISHED flat situated in Buckingham town centre. The property benefits from it's own entrance, stairs leading up to flat itself, lounge/dining room, fitted kitchen with electric hob & oven, washing machine & fridge with freezer box, one do...
Seymours in Godalming are delighted to bring to the lettings market this recently refurbished ground floor maisonette, set within a small and popular development, conveniently located within easy walking distance of Godalming town centre and Farncombe. The property has been redecorated and refurb...
** Zero Deposit Guarantee Available ** A beautifully presented partly furnished two bedroom first floor apartment, finished to a high standard throughout, tucked away in a quiet and secluded development in Shirley, Southampton, just a short distance from the General Hospital, central Southampton,...
Available now, this well-presented one-bedroom top-floor apartment features a modern kitchen and contemporary shower room, set above commercial premises and ideally located moments from West Croydon BR Station, with excellent transport links and local amenities close by.
EAST CROYDON ALERT! Calling all commuters, FALL OUT OF BED & ONTO A TRAIN (almost!). Don't miss this ground floor flat with PRIVATE PATIO area in a quiet location less than 400m from East Croydon Station. Entryphone, hallway, reception room, fitted kitchen, double bedroom, bath/wc - NEWLY UPD...
A beautifully presented rarely available 4 double bedroom detached house situated on a quiet residential road on Epsom Downs. The property boasts a spacious entrance hall leading to a modern fitted kitchen with integrated appliances with an island that has seating and extra storage, a ...














