3 results
Three bedroom end of terraced house, recently redecorated and various other improvement works carried out, private rear garden with new decking & separate studio room.
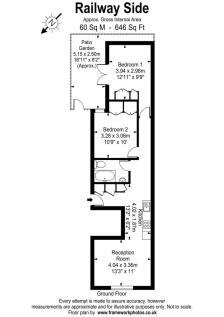
A recently renovated two bedroom ground floor garden flat in a sought after Barnes location.
Spacious and recently refurbished three double bedroom flat arranged over two floors in very convenient location in the centre of East Sheen, a few minutes’ walk from Mortlake Station with all local shopping facilities on the doorstep.
Staying secure when looking for a property
Ensure you're up to date with our latest advice on how to avoid fraud or scams when looking for property online.
Copyright © 2000-2025 Rightmove Group Limited. All rights reserved. Rightmove prohibits the scraping of its content. You can find further details here.