Properties To Rent in M14 6LX
A super stylish recently refurbished 4 bed 2 bath house located a short walk from Fallowfield centre. Tenants will have the benefit of a modern, contemporary kitchen, a spacious well appointed lounge and two luxury bathrooms. On-street parking available without the need for a permit from the coun...
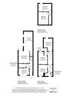
Superb 6-bedroom house available for the next academic year 2024, 1st of July.Furness Road, Fallowfield, M14.This house is well presented with plenty of space. It features six large, fully furnished bedrooms, a separate kitchen, and a separate lounge area. The property has been developed with att...
Furness Road - 5-bedroom student retreat in Manchester, M14. Available from 01 July 2026.Discover a home that balances comfort, style and practicality. This newly refurbished five-bedroom property on Furness Road is designed for students who value space and atmosphere.Property highlights: five eq...
Student Accommodation Available 1st July 2026 £138pppw* This homely mid-terraced property has four bedrooms over two floors, a lovely dining kitchen which overlooks the rear yard, as well as a spacious lounge and a modern shower room. The property is fully furnished and tenants will benefit from...
FREE end of tenancy cleaning service INCLUDED. An immaculate MID TERRACED house with SIX DOUBLE bedrooms and TWO bathrooms set over THREE floors. Three piece bathroom suite and a separate shower room. Located off WILMSLOW ROAD with great access to public transport to the Uni´s. ALL BILLS INC...
Available to rent for next student year. fully Furnished 4 bed houseRent: £150 pppw (£50 off rent per tenant call for more details )Bills included: Gas, Water, Electricity, TV License & BroadbandBedrooms: 4Bathrooms: 2Deposit: Only 1 months rent (offer flexible deposit payments )Each 4 bedroo...
Four-bedroom property available for academic year rental.This spacious and fully furnished four-bedroom home is available for the upcoming academic year. Each bedroom is generously sized and includes a double bed base, mattress, study table, chair, chest of drawers and wardrobe.The living room is...
*STUDENT PROPERTY *2026-2027 Academic Year *FOUR DOUBLE BEDROOM MID-TERRACE HOUSE *£156 PER PERSON PER WEEK ALL BILLS INCLUDED *NO DEPOSIT OPTION AVAILABLE* A fully furnished, end terraced house available for the next academic year. The property has recently ...
 Newly Refurbished 5-Bed Student Property - Available from 1st July 2026 This spacious and modern home offers:  5 equally sized generous bedrooms  3 toilets and  2 showers  Private patio garden - perfect for relaxing or socialising  Bills package available on request.
STUDENTS ONLY - Rooms from £650 per person per month - Available from 01-07-2026 Available to rent for next student year. fully Furnished 4 bed house Rent: £150 pppw (£50 off rent per tenant call for more details ) Bills included: Gas, Water, Electricity, TV License & Broadband Bedrooms: 4 ...














































































































































































































































































































































