Student Terraced Houses To Let in Southmead, Bristol
This lovely fully furnished 3 bed terraced house boasts 3 double rooms, 1 bathroom, a stylish living room and a newly fitted kitchen with a dishwasher, fridge-freezer and washer/dryer.The property is in excellent condition also comes with a well sized garden and off street parking for up to 2 car...
*STUDENT PROPERTY AVAILABLE This fully furnished 3 bed terraced house boasts 3 double rooms, 1 bathroom, good size living room and a newly fitted kitchen, all finished to a high standard.The property also comes with a large sized garden and off street parking for up to 2 cars.The property is...
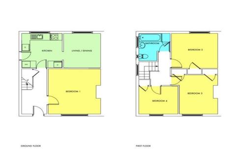
***AVAILABLE TO STUDENTS FOR 2026/2027*** Student Property | Large Rear Garden | In Excellent Condition | Sought After Location | On Main Bus Route | Modern Kitchen & Bathroom | Fully Managed | Superfast Fibre Broadband Included In Rent 4 bedroom terraced house in a sou...
NOW AVAILABLE FOR THE 2026-27 ACADEMIC YEAR Spacious 4-bedroom terraced house for rent on Greystoke Avenue, BS10 6BD. Ideal for students and professionals, featuring well-sized rooms, a modern kitchen, and easy access to local amenities and transport links. Perfect blend of comfort and convenience.













