Commercial Properties For Sale in Camberwell, South East London
The unit is found within a new build property with a basic fit out. The property is currently being used as an artist's studio. Found on the ground floor, the unit has large windows at the front of the property, a W.C and small kitchenette installed. The unit is located off Camberwell Road, whi...
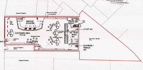
2a Denmark Road is well positioned off Denmark Road adjacent to Coldharbour Lane and under half a mile from both Loughborough Junction Station and Denmark Hill Station. Held within three titles (LN206550, SGL23538 and TGL547593) the total site area is approximately 0.076 acres or 3,341sq. ft. cu...
Dexters are delighted to introduce for sale 6 Calais Street, a three storey Victorian end of terrace house that has been converted into two self-contained duplex maisonettes, located within the Minet Estate Conservation Area directly opposite the popular Myatt's Fields Park.
The unit is found within a new build property with a basic fit out. The property is currently being used as an artist's studio. Found on the ground floor, the unit has large windows at the front of the property, a W.C and small kitchenette installed. The unit is located off Camberwell Road, whi...





