Commercial Properties For Sale in Chatham, Kent
Paid partnerships can play a role in listing order
A superbly located freehold development site in one of Medway's most well-known areas, Chatham, just minutes from the station and High Street. The development site itself is a cleared site, and extends to c.0.13 acres, which benefits from planning consent to construct a 6-storey building comprisi...
- Freehold Development Site with planning for 10x 1-bedroom & 14x 2-bedroom apartments.
- 0.3 mile to Chatham High Street & 0.4 mile to Chatham Station.
- GDV Resale Value c.£5m (c.£315 p/sqft).
The property comprises a self contained industrial/warehouse unit of concrete frame construction with brick and block walls under an insulated clad roof. There is an additional enclosed loading bay of more modern steel frame and insulated sheet steel cladding attached. Internally the unit is divi...
The unit comprises an end terraced warehouse/industrial unit constructed in 2006. Salient features:- * 4.5 metre high electrically operated goods loading door * Separate personnel door * Eaves height is approx. 8.1 metres * Substantial warehouse * High specification offices with two director/m...
A superbly located freehold development site in one of Medway's most well-known areas, Chatham, just minutes from the station and High Street. The development site itself is a cleared site, and extends to c.0.13 acres, which benefits from planning consent to construct a 6-storey building comprisi...
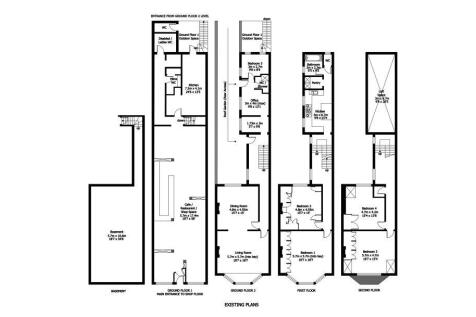
For Sale by Public Online Auction on 29/10/2025 13:00 . The property comprises a three storey brick built, mid terrace building with a glazed frontage. The ground floor comprises a main retail area to the front, with office accommodation, a kitchen, and a WC to the rear. The first floor pr...
For Sale - Ground Floor Commercial Investment / Development Opportunity with Vacant Possession Ground floor commercial premises just off Chatham High Street with Residential Development Potential. The site is available with the benefit of planning permission for the construction of a 2-bedroom r...
Kent. YE25 Turnover £884,000, with a 26% The business provides vehicle repairs and maintenance, as well as class 4, 5 and 7 MOT testing. Through its skilled and experienced team of operatives, the company caters to light commercial vehicles, electric and hybrid vehicles, and motorhomes. Has...
**For Sale By Public Auction 27th May 2026 09:30 AM To inspect the legal documents for this property go to our website to download the legal pack** A Ground Floor Retail Unit Subject to a Lease Producing £8,500 Per Annum (Reflecting a Gross Initial Yield of 1...
Please refer to auctioneer for more information **For Sale By Public Auction 1st August 2024 10:00 AM To inspect the legal documents for this property go to our website to download the legal pack** A Plot of Land Measuring Approximately 1.8 Acres / 7,284 sq m/ 78,4...





