Commercial Properties For Sale in Ecclesall, Sheffield
The property is an early 20th century three storey detached former residential property of traditional brick masonry construction with reconstituted stone fronted elevations with a pitched roof covering. The property is arranged as office accommodation across ground, first and second floors. Th...
PUBLIC HOUSE Benefits from strong matchday trade and consistent local patronage Currently run entirely by staff due to the owners’ other business interests Scope to expand the food offering beyond matchdays Expansive beer garden, partially covered, featuring a second bar Weekly turnover £6,000 ...
Unique Character Building For Sale/To Let. Rare Ecclesall Road Development Opportunity. Great Location Fronting Popular Ecclesall Road. Implemented Planning for Residential Development of 9Apartments + 4 Dwellings House + Commercial Space. Totalling 5,545 sq ft (515.19 sq m) on 0.2 Acre Site.
An excellent investment property, in this very busy and popular location, in a parade of shops between Sharrowvale Road and Ecclesall Road comprising a GROUND FLOOR LOCK UP RETAIL UNIT and to the rear, a THREE BEDROOM TERRACE INVESTMENT PROPERTY let on a long term regulated tenancy. The ...
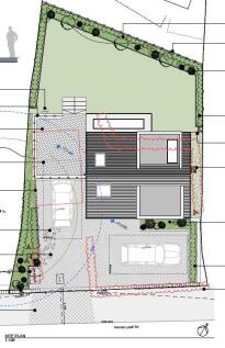
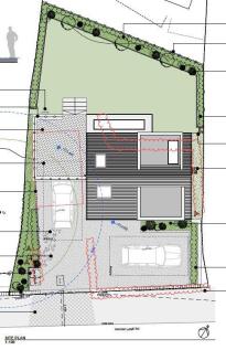
A rare opportunity to purchase a superb building plot with full planning permission for a contemporary three-bedroom detached house of approximately 1,216 sq.ft. Designed to offer spacious accommodation over three floors, the approved plans include an open and versatile living layout, three well...



