Commercial Properties For Sale in Ewell, Epsom, Surrey
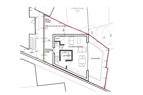
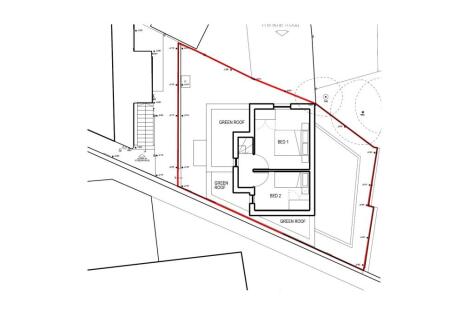
Substantial freehold development opportunity for sale with planning. Currently comprising a ground floor restaurant with a self-contained 2/3 bed flat above and a separate garage and large yard/car park. The property benefits from planning permission to reduce the commercial and create a 1 bed an...
The premises which is very well appointed form a ground and first floor premises which has traded as a restaurant for many decades with ground floor restaurant including kitchen and ancillary and function/private dining/party room together with stores with a smaller first floor offering office, two
The property is located on the south west side of Dell Lane between Dell Road and Kenilworth Road and to the rear of the shops in Stoneleigh Broadway. Stoneleigh is located between Worcester Park and Epsom. The premises comprise a single-storey industrial/warehouse building of concrete frame co...
Opportunity to acquire a redevelopment site with planning permission for 6 new residential units. The property comprises the rear of a ground floor commercial unit and a yard/ parking area with a single storey garage. The planning permissions allow the rear of the commercial to be self-contained ...
The site extends to circa. 1.20 hectares (2.97 acres), it is rectangular in shape and is mostly level. The site currently features a residential property, alongside unused nursery buildings, with the remaining area covered by scrubland. Both the site and associated properties are currently vacant...





