Land For Sale in Glasgow and Surrounding Areas
We are excited to present this plot of land at Seafar Road in Cumbernauld with previous planning for 20 Social Houses***15a Fleming Road, Cumbernauld, Glasgow, G67 1LH previously sold for £180,081, 18 Fergusson Road, Cumbernauld, G67 1LS previously sold for £236,000 in 2024***
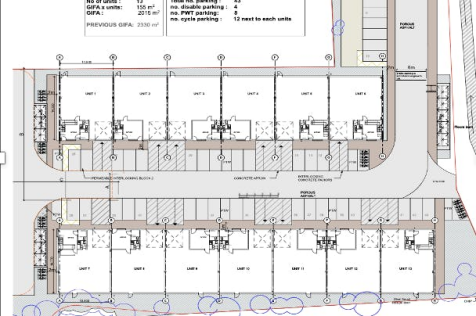
FOR SALE BY ONLINE AUCTION WEDNESDAY 26TH OF NOVEMBER 2025 AT 9.00AM - ***AN EXCEPTIONAL OPPORTUNITY TO ACQUIRE A WELL-POSTIONED PLOT OF LAND IN THE HEART OF PAISLEY***EXCELLENT POTENTIAL FOR A VARIETY OF DEVELOPMENT USES (SUBJECT TO PLANNING PERMISSIONS)***HAD PLANNING FOR 4 COMMERCIAL UNITS AND...
We are excited to present this Great size plot - 1 Acre (43,560 square feet approx.) in sought after area nestled within the bustling and cultural town of Armadale. Planning has been approved for a 4 bedroom dwelling/house which is sure to appeal to a shrewd developer.
FOR SALE BY ONLINE AUCTION WEDNESDAY 26TH OF NOVEMBER 2025 AT 9AM - ***EXCEPTIONAL OPPORTUNITY TO ACQUIRE A PROMINENT PARCEL OF LAND SITUATED ON THE WELL-CONNECTED AND HIGHLY SOUGHT-AFTER KING'S INCH ROAD IN RENFREW***CLOSE TO THE VIBRANT RETAIL AND LEISURE HUB OF BRAEHEAD***EXCELLENT TRANSPORT L...
The subjects comprise a development site which extends to approximately 1.05 Acres (0.42 Hectares) which was previously a large detached traditional villa with private grounds, ‘Ardenvohr'. Following planning permission being obtained for a residential redevelopment of the site in 2006, the build...
Prime opportunity to acquire a centrally located development site in the heart of Glasgow Full Planning Permission has been granted for 359 Build to Rent apartments, featuring roof terraces and commercial space at ground level. The site measures approximately 1.14 acres (0.46 ha) within the Cow...
RESIDENTIAL DEVELOPMENT OPPORTUNITY Our clients have obtained a full detailed planning consent subject to execution of Section 75 (details in the information pack) for a redevelopment of their property. The reference number for the planning application is TP/ED/18/0871. All th...
A wonderful opportunity to design and build a stunning, substantial home on the periphery of Uddingston. We have five large serviced plots available within this small exclusive development which enjoys a lovely setting adjacent to Calderbraes Golf Course, whilst being only a few minutes drive fro...
A wonderful opportunity to design and build a stunning, substantial home on the periphery of Uddingston. We have five large serviced plots available within this small exclusive development which enjoys a lovely setting adjacent to Calderbraes Golf Course, whilst being only a few minutes drive fro...
A wonderful opportunity to design and build a stunning, substantial home on the periphery of Uddingston. We have five large serviced plots available within this small exclusive development which enjoys a lovely setting adjacent to Calderbraes Golf Course, whilst being only a few minutes drive fro...
A great development site located in the small village of Eastfield, which has planning permission granted for a mix of 16 semi detached and detached villas. The site extends to circa 2.03 acres (0.82 Ha) and sits back from Edinburgh Road in a cul-de-sac with a design forming 14 x semi de...
A wonderful opportunity to design and build a stunning, substantial home on the periphery of Uddingston. We have five large serviced plots available within this small exclusive development which enjoys a lovely setting adjacent to Calderbraes Golf Course, whilst being only a few minutes drive fro...































