Land For Sale in Herefordshire
The land comprises a greenfield site adjacent to the existing Esso petrol filling station, which includes a Spar as well as Greggs and Subway kiosks / concessions. Access to the subject site is currently though the existing PFS, off the main A road (A449). The site also benefits from a prominen...
The development site is a former agricultural farmstead set in open countryside with full planning permission for four barn conversions and four new dwellings. Two four bed building plots, two large three bed semi plots, about 1000 sq.m of barn conversion space, four bed Farmhouse needing renovat...
Set in the glorious South Herefordshire countryside, this well-managed smallholding has been cared for by the same family for over two decades. At its centre stands a spacious detached dormer bungalow, built in 1996 and subject to an Agricultural Occupancy Condition, accompanied by a useful range...
2.95 Acre Residential Development site with current planning for 7 x dwellings, currently subject to a revised application Stunning rural location Situated just off the A4103 providing access to Great Malvern Adjacent to the village amenities of Cradley Direct trains to London Paddington &...
The development site is a former agricultural farmstead set in open countryside. Full planning permission for four barn conversions and four new dwellings. Two four bed plots. two large three Bed semi Plots, about 1000 sq.m of barn conversion space, Farmhouse needing renovation also available sep...
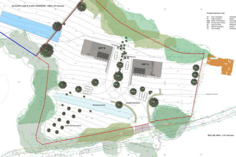
The site is presently agricultural land with planning consent for 24 residential units consisting of 16 open market units and 8 affordable housing units. The 16 open market units will comprise of six 2-bedroom houses, eight 3-bedroom houses and two 4-bedroom houses. The affordable house...
An excellent opportunity to acquire an enclosed, part-walled paddock with development potential, subject to the necessary planning consents. Situated in a desirable semi-rural location, the land offers easy access to Ross-on-Wye on foot or by bicycle. The current owners are open to discussions re...
LOT 1 Situated in North Herefordshire, the property extends to approximately 70.37 acres (28.48 hectares) of predominantly prime arable and grassland and also benefits from a useful dutch barn, which may offer potential residential development opportunities. The land is available in thre...
Tuck Mill Barn Tuck Mill Lane Marstow HR9 6EH Summary of features: Barn with planning consent for a substantial 4-bedroom dwelling Chalet with planning consent for a replacement 2-bedroom dwelling Set in approximately 17.56 acres Pasture land and woodland Conve...
Available as a Whole or in Two Lots (with potential for further subdivision) Lot 1: Approximately 19.05 Acres Lot 2: Approximately 25.01 Acres This land is conveniently located next to the B4203 Bromyard to Great Witley road, just 2.5 miles north-east of Bromyard and adjacent to ...
Tuck Mill Barn Tuck Mill Lane Marstow HR9 6EH Summary of features: Barn with planning consent for a substantial 4-bedroom dwelling Chalet with planning consent for a replacement 2-bedroom dwelling Set in approximately 17.56 acres Pasture land and woodland Conve...
Prime investment in Ross-on-Wye: two 3-bed houses, one 1-bed maisonette (built 1990s) with rear parking, plus substantial workshop and yard. Prominent frontage to Kyrle Street with yard access from Red Meadow car park. Strong residential and commercial potential
The property comprises approximately 30.41 acres (12.31 ha) of predominantly Grade 3 arable land, with a portion of Grade 2 land to the west. It has been well managed in an arable rotation. The land is conveniently situated 4.5 miles from Bromyard, 9.6 miles from Malvern, and 15.7 miles from Worc...





























