Land For Sale in High Weald
Paid partnerships can play a role in listing order
INVESTMENT OPPORTUNITY - BUILDING PLOT WITH PLANNING - ONE OF TWO AVAILABLE. PCM Estate Agents offer to the market an opportunity to acquire a BUILDING PLOT with PLANNING PERMISSION for the erection of a DETACHED FOUR BEDROOM HOUSE, with 185 sq/m of internal living space. The ...
Circa 250-acre Commons with £18k+ income, 20+ BNG units per hectare, and scope to formalise 900+ access rights. Includes historic Lord of the Manor of Rusthall title, with roots in 13th-century legislation. A strategic asset blending legacy, ecology, and long-term value. Click to explore.
4-Acre Car Park and Woodland beside The Pantiles generating £128k+ pa from parking and wayleaves. Prime redevelopment potential for 104 luxury apartments (GDV c.£60m), subject to deregistration and planning. Strategic central Tunbridge Wells site with proven income and upside.
On the market for the first time in 30 years, this rare opportunity offers a 6.1 acre, self build plot in a countryside setting boasting spectacular views. Tucked away off a quiet lane and just a short walk to the village of Goudhurst, this site blends seclusion with picturesque surroundings
*For sale via secure sale online bidding: terms and conditions apply.* We are pleased to offer to auction this part finished refurbished former guest house offers a number of possibilities for further development. The main building having a ground floor gross external area of circa 2,540ft...
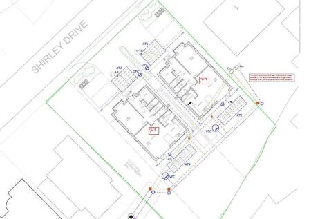
Upon the instructions of Hastings Borough Council, SHW are instructed to sell the scrubbed vacant undeveloped land edged red on the enclosed plan. Plot PX adjoins the new Churchfields Business Centre while Plot NX2&3 adjoin Plot NX1 (Highfield Business Park) which is also owned by the Council an...
For sale via secure sale online bidding - terms and conditions apply. An excellent opportunity to acquire Shadwell House, a well-presented and generously proportioned two-storey commercial building extending to approximately 2,188 sq ft (203 sq m), complemented by a private car park offering ...
Greenbelt agricultural land.£45,000 for 1 acre£90,000 for 2 acre£140,000 for 3 acre.Available for agricultural use or residential or commercial use subject to the necessary. Concrete access track. Land being used for a variety of uses in the area.Water and Electricity installed.
Greenbelt agricultural land. Available for agricultural or leisure use. Also available for commercial or residential use subject to the necessary consent.£19,000 for 1 acre£38,000 for 2 acre£57,000 for 3 acrePayment by monthly installment options available.
Greenbelt Amenity Woodland1 acre £15,0002 acre £30,0003 acre £45,000 Payment by monthly installment options available if required.Greenbelt woodland. Available for agricultural or leisure use. Or residential or commercial use subject to the necessary consent.
PRIME NEW LISTING. We are excited to present these plots of land near Downingbury Farm House located within a prime location in Tunbridge Wells.The unique plot offer immense potential for a variety of uses, subject to obtaining necessary permissions, making it an ideal investment.
*For sale via secure sale online bidding: terms and conditions apply.* We are pleased to offer to auction these six freehold plots of land that are located on the south side of The Grove in Burwash. Burwash is a rural village and civil parish in the Rother district of East Sussex, England. The...
Greenbelt agricultural land. Available for agricultural or leisure use. Or residential or commercial use subject to the necessary consent.£6000 for 400 m2£8000 for 500 m2£9000 for 600 m2£10000 for 800 m2Concrete access tracks. Water and electricity installed.
Road frontage wood land. Greenbelt land the woodland has a blanket Tree preservation order.£6000 for 100 m2£8000 for 200 m2£9000 for 300 m2£10,000 for 400 m2Available for agricultural or leisure use. Or residential or commercial use subject to the necessary consent.
Greenbelt agricultural land. Available for agricultural or leisure use. Or residential or commercial use subject to the necessary consent.£5000 for 400 m2£6000 for 500 m2£7000 for 600 m2£8000 for 800 m2Multiple plots available if required. Payment by monthly installment options available.
**For Sale By Online Auction To inspect the legal documents for this property go to our website to download the legal pack** Land and Roadways Freehold Guide Price = No Reserve Location The land and roadways are situated on a residential road close to local sh...
A stunning rural plot of 24.32 acres with captured Planning Permission for development of a truly bespoke and idyllic home with breathtaking countryside views. This generous 24.32 acre plot of land for development offers a once in a lifetime opportunity and is set within Area of Outstanding Natu...
DEVELOPERS AND INVESTORS An interesting cluster of period buildings five converted and currently let with planning permission granted under reference RR/2022/2991/P to create four additional units with associated parking and gardens. In addition there is a large car park...
**Guide Price £1,380,000 - £1,450,000** An attractive and beautifully presented, detached, Grade II listed house, approximately 4718 sq ft, situated in a sought after location, with gardens and grounds of approximately 3.56 acres, together with ample off-road parking and detached...


