Land For Sale in Leicester, Leicestershire
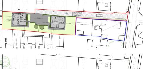
An opportunity to acquire a building plot with full planning for a detached 4-bedroom house extending to approximately 1,885 sq ft with off road parking and garden. The site extends to 0.11 acres (453 sq m). For sale by Online Auction on Tuesday 9th December 2025
The site comprises a fairly regular rectangular shaped, level site, that is securely gated and fenced with tarmacadam, concrete and granite surfaces. The site benefits from a return frontage, albeit the current access onto the site is shared.
Leicester Road is a true one of a kind opportunity to purchase a sizable four bedroom detached property alongside approved planning permission for the erection of two additional, three bedroom homes on this sizable yet private plot, excellently located within easy reach of Leicester. Th...
An opportunity to acquire a building plot with full planning for a detached 4-bedroom house extending to approximately 1,885 sq ft with off road parking and garden. The site extends to 0.11 acres (453 sq m). For sale by Online Auction on Tuesday 9th December 2025
A single storey roof top air space development opportunity for 2 luxury 2 bedroom penthouse apartments to the front of The Foister Building. Proposed Accommodation for Each Apartment: Entrance hall, large open plan living / kitchen area, 2 double bedrooms one with ensuite, bathroom. GIA: 807...






