Land For Sale in Mawgan-In-Pydar, Newquay, Cornwall
Paid partnerships can play a role in listing order
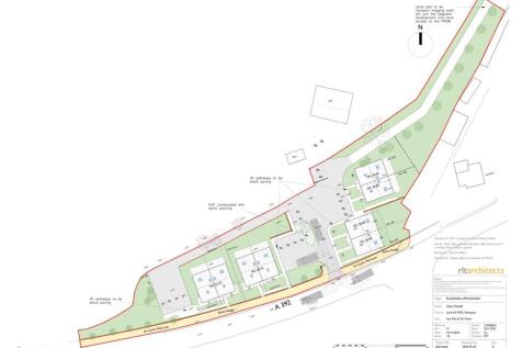
Well located commercial development land with consent for Industrial Units. The consent provides for a total of 11,270 sq ft between 6 blocks. Prospective purchasers may seek to vary the consent to better suit their requirements. The site is generally level, currently laid to pasture and benefits fr
Commercial development land available on a freehold basis. The land forms part of proposals for the wider redevelopment of this site, the balance intended for residential development - all of which is consented. See red line on the layout plan for the commercial aspect. Plans have been approved for
An exciting opportunity to purchase this fantastic development site set on approximately 0.7 Acres, perfect for a self-build or a developer. Semi-rural location within easy access to Newquay Airport and the A30. The plot benefits from outline Planning Permission for two dwellings (Planning Ref PA...





