Hotels For Sale in Nairnshire
Paid partnerships can play a role in listing order
The West End Hotel represents a rare opportunity to acquire a well-established and highly regarded hospitality business in the heart of Nairn, one of the Highlands’ most desirable coastal towns. Offering eleven en-suite letting rooms, extensive public areas, and a beautifully maintained exterior,...
- 22 Room Hotel
- Multiple income streams
- Character period property
THIS IS A LEASHOLD SALE The West End Hotel represents a rare opportunity to acquire a well-established and highly regarded hospitality business in the heart of Nairn, one of the Highlands’ most desirable coastal towns. Offering eleven en-suite letting rooms, extensive public areas, and a beaut...
- 22 Room Hotel - Leasehold
- £60,000 annual rent
- Multiple income streams
The West End Hotel represents a rare opportunity to acquire a well-established and highly regarded hospitality business in the heart of Nairn, one of the Highlands’ most desirable coastal towns. Offering eleven en-suite letting rooms, extensive public areas, and a beautifully maintained exterior,...
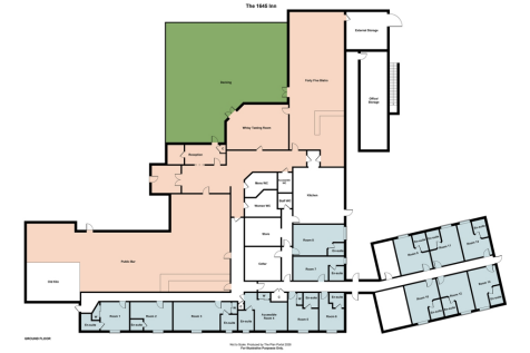
Historic 17th-century Inn in a prime Auldearn location with direct A96 access, featuring 14 en-suite rooms, bar, bistro, and whisky tasting room. Set on over an acre with a four-bedroom owners’ lodge, it benefits from strong year-round trade, excellent reviews, and scope for expansion or events.
THIS IS A LEASHOLD SALE The West End Hotel represents a rare opportunity to acquire a well-established and highly regarded hospitality business in the heart of Nairn, one of the Highlands’ most desirable coastal towns. Offering eleven en-suite letting rooms, extensive public areas, and a beaut...