Commercial Properties For Sale in North Shields, Tyne & Wear
Paid partnerships can play a role in listing order
The site is located to the north-east of East Percy Street, just half a mile from the North Shields Fish Quay, in where you will find a variety of shops, restaurants and drinking establishments. Tynemouth is situated just over one mile east of the site, offering further amenities and Long Sands B...
A rare opportunity to purchase this key property in the heart of, Tynemouth. The property occupies a central position on the north side of Front Street within one of the most desirable locations in the north east. The property has been sympathetically maintained and developed by the current owner...
OPPORTUNITY Bradley Hall is delighted to be appointed to market this development opportunity in North Shields. The site is allocated as a residential opportunity in the North Tyneside Local Plan. LOCATION The site is located on Waldo Street in North Shields. Waldo Street and...
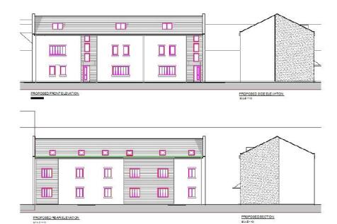
OPPORTUNITY Bradley Hall is delighted to be appointed to market this residential development opportunity in North Shields. The scheme has planning permission for 5no residential dwellings. LOCATION The subject site is located on Borough Road in North Shields. Borough Road i...
The land previously secured outline planning permission for a nine-unit apartment scheme and has a strong planning history, with several lapsed consents including proposals for two apartment blocks comprising 12 units each and a terrace of nine three-storey houses. This established planning prece...
Commercial investment. Freehold guest house & tea rooms investment. Rental income £48,000 per annum. 6.0 % yield on asking price. Tenants have a lease in place until Feb 2043. 7 luxury en-suite room, owners accommodation & tea garden. Presented to a high standard. Sough after affluent c...
Signature North East proudly presents this exceptional commercial property, offering a rare opportunity to acquire a substantial and versatile workspace in the heart of Fish Quay, North Shields. With the potential for conversion into one or multiple residential dwellings, this property provides f...
Freehold traditional fish & chip takeaway & restaurant. Three storey freehold property with stunning coastal views. Net internal area 187.4 sq. m. (2,017 sq. ft.). Family-run since 1992 with a loyal customer base and strong reputation. Excellent passing trade and footfall. Heal...
*** THREE STOREY MID TERRACED BRICK BUILDING - NORTH SHIELDS TOWN CENTRE - PRIME LOCATION - INVESTMENT/COMMERCIAL FOR SALE *** Mike Rogerson is pleased to welcome to the sales market this rare opportunity to acquire this commercial building in the sought after Bedford Street, in the Town Centr...
Award winning guest house. 7 luxury en-suite rooms. Tea rooms with 22 internal & 24 external covers. Presented to a very high standard. Owners accommodation. Stunning rooms with sea views. Gross turnover £218,000 per annum. Sought after affluent costal village. Beautiful traditional tea gar...
Attractive mixed-use investment opportunity with strong future potential. Two-bedroom flat currently let. Vacant ground floor retail unit ready for immediate occupation. Producing £4,740 annual rental income from residential flat. Retail unit measuring circa 55.6 sq. m. (599 sq. ft.). Conve...
Prominent double-fronted ground floor retail unit. Floor Area 115.7 sq. m. (1,246 sq. ft.). Prime location on sought-after Tynemouth Front Street. High footfall year-round from residents and visitors. Ample pay-and-display and free surrounding parking. Suitable for variety of uses stpp. Rent &pou...
Popular café in busy residential seaside location. Well-presented premises 75.6 sq. m. (813 sq. ft.). 22 internal covers plus 8 pavement seating covers. Turnover circa £3,000 per week. Alcohol licence permitting sales until 9:00pm. Additional rear service hatch for weekend trade. Eli...